Mẫu nhà phố 2 tầng mái bằng đang rất được ưa chuộng tại khu vực thành phố với ưu điểm là gọn gàng, không mất quá nhiều diện tích. Với những thiết kế hiện đại mái bằng chắc chắn sẽ mang đến một không gian hoàn hảo cho bạn và gia đình của mình. Lyarchdesign thiết kế và thi công trọn gói mẫu Nhà phố 2 tầng đường Phan Đình Phùng – TP. Quảng Ngãi đáp ứng đầy đủ những yêu cầu trên. Chúng ta cùng tham khảo mẫu nhà phố 2 tầng đang rất được ưa chuộng hiện nay nhé.
Thông tin chi tiết dự án:
+ Địa chỉ xây dựng: Đường Phan Đình Phùng – TP. Quảng Ngãi.
+ Quy mô dự án: Nhà phố 2 tầng
+ Diện tích: 8x16m
+ Đơn vị thiết kế và thi công: Công Ty CP Kiến Trúc và Xây Dựng Lyarch
+ Năm xây dựng: 2023
Phối cảnh 3d Nhà phố 2 tầng tại đường Phan Đình Phùng – TP. Quảng Ngãi
Phần mặt tiền với không gian rộng đến 8m bạn có thể tạo thêm được một khoảng sân vườn trồng cây xanh. Thiết kế thêm cả gara để phương tiện đi lại khỏi nắng mưa mà không cần phải gửi xe ở bến bãi như những người không có diện tích để ô tô, xe máy… thường mất một khoản chi phí phát sinh cho khoản tiền này.

Tổng thể, ngôi nhà khoác lên mình vẻ ngoài tối giản nhưng không hề đơn điệu. Các bức tường trắng cũng làm sáng lên không gian và cho phép nhiều ánh sáng tự nhiên lấp đầy ngôi nhà. Ngoài ra, sự pha trộn từ những gam màu trung tính như trắng, xám, đen,…mang đến cho chủ nhân cảm giác thoải mái, yên bình và thư giãn.

Mặt tiền ngôi nhà được ốp đá giúp căn nhà trông sang trọng và có nét cổ điển pha trộn tổng thể trở nên hài hòa. Hệ thống cửa sử dụng hệ thống nhôm xingfa, kính cường lực giúp lấy tối đa ánh sáng tự nhiên từ bên ngoài giúp không gian sống thải mái. Ban công được bày trí thêm khoảng không gian xanh của cây cảnh hoa lá giúp tạo điểm nhấn cho cảnh quan còn giúp cho gia chủ thư giãn sau những ngày dài làm việc.
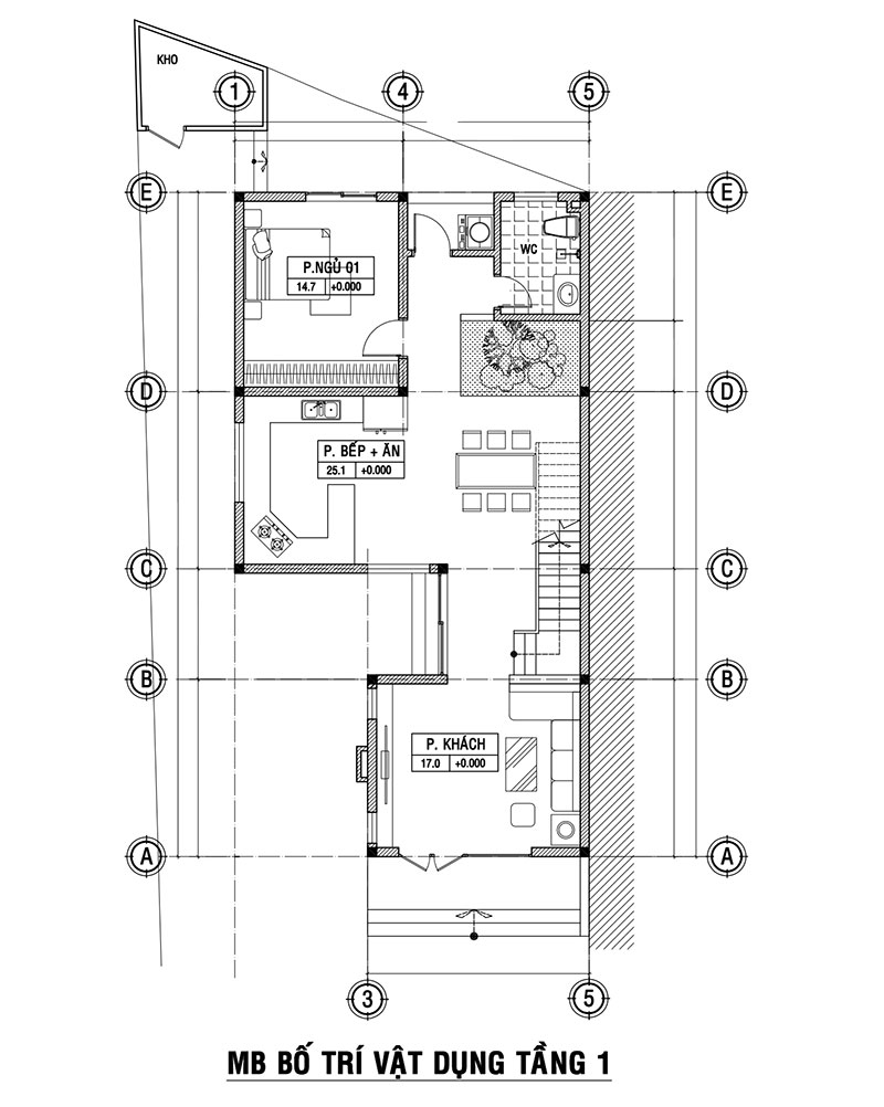
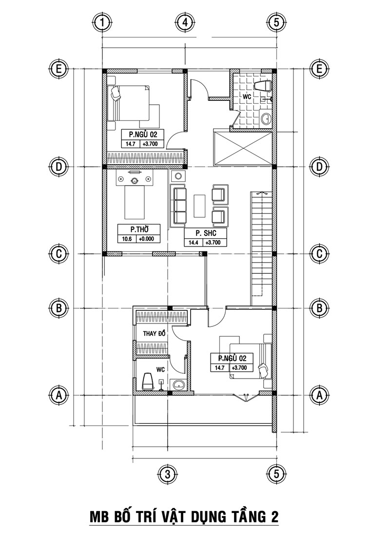
Mặt bằng công năng nhà phố 2 tầng đường Phan Đình Phùng – TP. Quảng Ngãi
+ Tầng 1: Sân trước, Phòng khách, Phòng bếp + ăn, Phòng ngủ 1, 01 Toilet

+ Tầng 2: Phòng ngủ Master có WC riêng, Phòng sinh hoạt chung ,phòng thờ, Phòng ngủ 2 + WC

Thiết kế nội thất nhà phố 2 tầng hiện đại tại đường Phan Đình Phùng
Phòng khách

Phòng bếp
Để tăng cơ hội kết nối với tự nhiên cho cả gia đình, kiến trúc sư đã thiết kế khu vực bếp và bàn ăn hướng ra sân vườn qua một hệ cửa kính trượt. Hệ cửa này không những giúp lấy ánh sáng, mà còn giúp lấy gió trời dễ dàng.

Tủ bếp được thiết kế ốp tường và theo kiểu bếp chữ L để thuận tiện cho việc nấu nướng. Tone màu chủ đạo tại đây cũng là màu xám đen kết hợp với màu gỗ . Đây là những gam màu khó lỗi thời và giúp mang lại cảm giác sạch sẽ cho không gian.
Phòng ngủ ba mẹ
Phòng ngủ dành cho vợ chồng được trang bị nội thất đầy đủ, tiện nghi giống với bản vẽ thiết kế. Phòng ngủ này vừa là không gian nghỉ ngơi, vừa giúp gia chủ thư giãn nhờ hệ ban công trực diện.


Phòng ngủ con trai


Phòng vệ sinh


Hy vọng mẫu thiết kế nhà phố 2 tầng hiện đại này sẽ mang đến cho các bạn những ý tưởng mới lạ trong việc xây dựng nhà ở của gia đình. Quý khách hàng có nhu cầu thiết kế nhà đẹp hay xây nhà trọn gói Quảng Ngãi nhà phố, biệt thự, căn hộ…. vui lòng liên hệ qua 0983 861 024 (Mr. Hải) hoặc đến địa chỉ 164 Phạm văn đồng, P. Nghĩa chánh, TP. Quảng Ngãi để được tư vấn hỗ trợ miễn phí nhé. Mọi thắc mắc hay nhu cầu sẽ được giải đáp, nhanh chóng thuận tiện.
>> Facebook: facebook.com/lyarchdesign






