Nhà không đơn thuần chỉ là nơi để ở mà còn là nơi thể hiện tư duy và cá tính của người chủ nhân. Nhà phố 2 tầng hiện đại tại Tịnh Ấn Tây là một ngôi nhà mang ý niệm như vậy. Ngôi nhà như một đứa con tinh thần và là một tác phẩm nghệ thuật dung hòa giữa cái tôi của gia chủ và tư duy của người kiến trúc sư để tạo nên một vẻ đẹp mới lạ, độc đáo phá vỡ những quan niệm xưa cũ về một ngôi nhà đã ăn sâu vào tâm trí người Việt.
Thông tin chi tiết dự án:
+ Vị trí công trình: Tịnh Ấn Tây
+ Quy mô dự án: nhà phố 2 tầng
+ Diện tích: 5x15m
+ Đơn vị thiết kế và thi công trọn gói: Công ty CP Kiến trúc và Xây dựng Lyarch
+ Năm xây dựng: 2023
Phối cảnh 3d Nhà phố 2 tầng hiện đại tại Tịnh Ấn Tây
Mặt tiền của nhà phố 2 tầng Tịnh Ấn Tây là một sự kết hợp hoà quyện giữa các hình khối kiên cố và hình vòm độc đáo, tạo nên diện mạo đẹp mắt và nổi bật. Mỗi khối kiến trúc được bố trí hài hòa, tạo razz một tổng thể đầy ấn tượng và sang trọng. Sử dụng ốp conwood càng tôn lên vẻ đẹp kiến trúc và làm tăng tính hiện đại cho ngôi nhà.

Không dừng lại ở đẹp mắt, Nhà phố 2 tầng tại Tịnh Ấn Tây còn gần gũi với thiên nhiên nhờ vào việc bố trí nhiều cây xanh ở ban công, sân trước và hai bên tường. Không chỉ tạo ra một không gian tươi mát, cây cối còn giúp cho ngôi nhà trở nên thoáng đãng và gần gũi hơn với tự nhiên. Tất cả những yếu tố này tạo nên sự kết hợp hài hòa giữa kiến trúc và thiên nhiên, giúp ngôi nhà trở thành một tổ ấm đáng sống và đầy an yên.

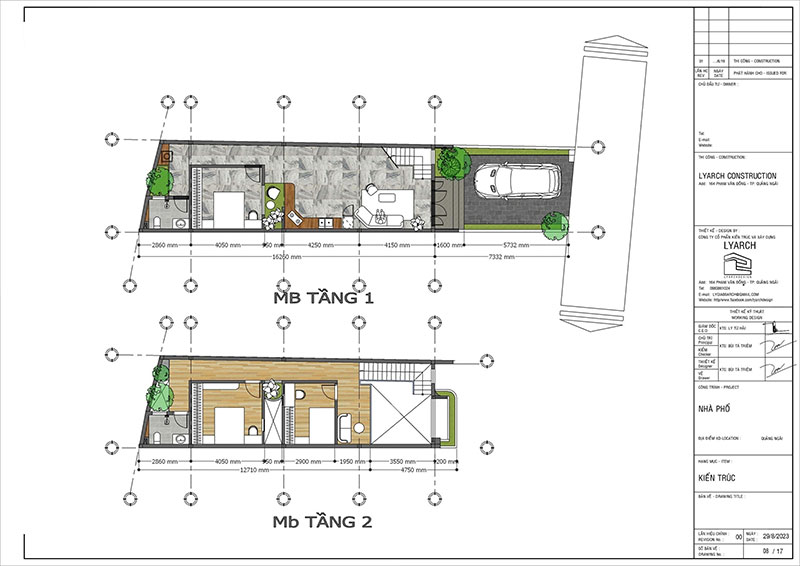
Mặt bằng sơ bộ nhà phố 2 tầng tại Tịnh Ấn Tây
Nhà phố 2 tầng tại Tịnh Ấn Tây gồm 02 tầng với công năng đầy đủ, cụ thể:
Tầng 1: Sân trước; phòng khách; phòng bếp + ăn; 01 phòng ngủ master; 01 WC.
Tầng 2: Ban công; phòng sinh hoạt chung; 02 phòng ngủ; 01 WC.

Với sự kết hợp hài hòa giữa thiết kế kiến trúc và bố trí công nhăn, nhà 02 tầng tại Tịnh Ấn Tây mang đến cho gia đình một không gian sống đáng giá và tiện nghi. Tận dụng tối đa diện tích và đáp ứng nhu cầu sử dụng, nhà 02 tầng tại Tịnh Ấn Tây chắc chắn sẽ là nơi gia chủ được tận hưởng những giây phút hạnh phúc và thư giãn.
Liên hệ ngay với LYARCHDESIGN để được tư vấn và hỗ trợ thiết kế, thi công tổ ấm cho riêng mình nhanh chóng và cụ thể nhất nhé!
>> Hotline tư vấn: 0983 861 024 (Mr. Hải)






