Nhà phố là mô hình nhà ở hiện đang rất phổ biến đối với những ai đang có nhu cầu xây nhà. Vì Thế trong bài viết ngày hôm nay, 𝐋𝐘𝐀𝐑𝐂𝐇 𝐃𝐄𝐒𝐈𝐆𝐍 xin giới thiệu đến bạn đọc một mẫu nhà phố 2 tầng hiện đại
. 𝑵𝒉𝒂̀ 𝒑𝒉𝒐̂́ 2 𝒕𝒂̂̀𝒏𝒈 𝒉𝒊𝒆̣̂𝒏 đ𝒂̣𝒊 một căn nhà mà bên mình đã thiết kế mời mọi người cùng tìm hiểu nhé.
Thông tin chung nhà phố 2 tầng 5x20m
+ Địa điểm: KDC577
+ Loại hình: Nhà phố
+ Số tầng: 2 tầng
+ Diện tích:
+ Đơn vị thiết kế và thi công : Công ty CP Kiến Trúc và Xây Dựng Lyarch
Phối cảnh 3d Nhà phố 2 tầng KDC 577


Mặt tiền nhà phố hiện đại 2 tầng đã gây được ấn tượng mạnh mẽ bởi sự khỏe khoắn, nét đẹp sang trọng. Đặc điểm nổi bật đầu tiên là hệ cửa cổng, đóng vai trò như điểm nhấn cho ngôi nhà. Hệ cửa cổng được thiết kế một cách tỉ mỉ và độc đáo, tạo ra một lối vào ấn tượng và đẳng cấp.

Sự kết hợp tinh tế giữa gam màu trắng, nâu và xám. Màu trắng làm màu chủ đạo, mang đến sự thanh lịch và sự sáng sủa, tôn lên vẻ đẹp tinh tế của căn nhà. Bên cạnh đó, màu nâu của gỗ conwood cũng tạo ra sự hòa quyện với môi trường xung quanh, hòa nhập với tự nhiên một cách hoàn hảo.

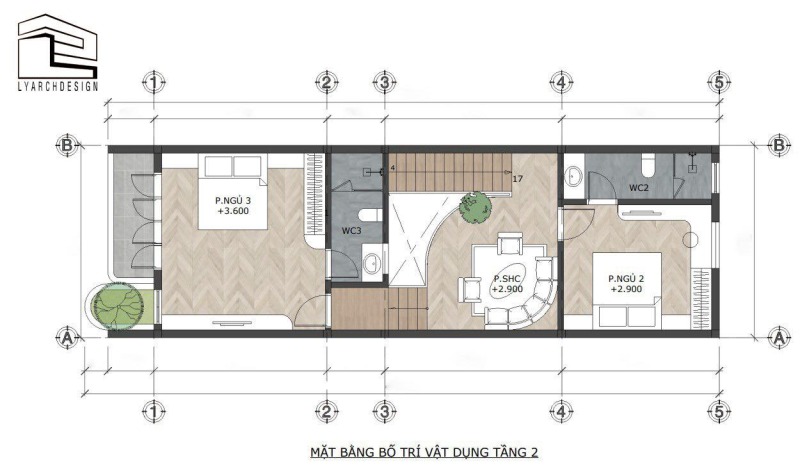
Dưới đây là trọn bộ thiết kế ngoại – nội thất nhà phố 2 tầng hiện đại mà quý gia chủ có thể tham khảo. Nếu muốn được tư vấn chi tiết hơn, đừng ngần ngại liên hệ với Lyarch Design nha! ================================

𝗟𝗬𝗔𝗥𝗖𝗛𝗗𝗘𝗦𝗜𝗚𝗡 LÀ CÔNG TY THIẾT KẾ & THI CÔNG TRỌN GÓI UY TÍN BẬC NHẤT TẠI QUẢNG NGÃI

Địa chỉ: 164 Phạm Văn Đồng – P. Nghĩa Chánh – TP. Quảng Ngãi

Liên hệ ngay: 0983 861 024