Thông tin chung nhà phố 3 tầng 5x20m
+ Địa điểm: TP. Quảng Ngãi
+ Loại hình: Nhà phố
+ Số tầng: 3 tầng
+ Diện tích: 5x20m
+ Đơn vị thiết kế: Công ty CP Kiến Trúc và Xây Dựng Lyarch
1.PHỐI CẢNH MẶT TIỀN NHÀ PHỐ 3 TẦNG 
🔥 🔥 ” Nhà phố 3 tầng hiện đại – Lê Hồng Phong ” 🔥 🔥
- Kiểu dáng: Nhà phố 3 tầng phong cách hiện đại thường có kiểu dáng thiết kế đơn giản, tinh tế tạo nên sự sang trọng, hiện đại cho căn nhà. Mẫu nhà này thường có các đường nét thẳng, khối hình đơn giản, màu sắc tươi sáng kết hợp với việc sử dụng các vật liệu và công nghệ tiên tiến.
- Không gian: Hầu hết thiết kế nhà phố 3 tầng hiện đại đều tận dụng tối đa không gian mở như liên kết giữa các khu vực phòng khách, bếp và phòng ăn để tạo ra không gian rộng rãi, thoáng đãng mang đến cảm giác gần gũi với thiên nhiên. Đồng thời, các cửa sổ lớn, cửa kính cũng được sử dụng để tăng cường ánh sáng tự nhiên và tầm nhìn ra bên ngoài.
- Tiện nghi và công nghệ hiện đại: Nhà phố 3 tầng hiện đại được trang bị các tiện nghi, công nghệ hiện đại như điều hòa không khí, hệ thống chiếu sáng thông minh, hệ thống an ninh cùng các thiết bị điện tử tiên tiến khác nhằm nâng cao chất lượng sống, mang lại sự tiện ích và thoải mái cho các thành viên trong gia đình.
- Tận dụng không gian đa chức năng: Với diện tích hạn chế, nhà phố 3 tầng hiện đại thường có thiết kế linh hoạt để tận dụng mọi không gian. Các phòng có thể được sử dụng đa chức năng, ví dụ như phòng làm việc cũng có thể dùng là phòng khách khi cần thiết.
2. CHI TIẾT CÔNG NĂNG
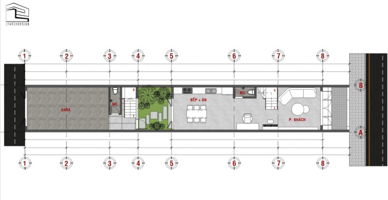
Mặt bằng sơ bộ nhà phố 3 tầng phong cách hiện đại
Mặt bằng bố trí tầng 1
+ Tầng 1: phòng khách, phòng bếp + ăn, wc

Mặt bằng bố trí tầng 2
+ Tầng 2: phòng dạy học, 2 phòng ngủ, wc.

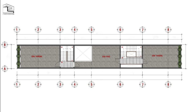
Mặt bằng bố trí tầng 3
+ Tầng 3: sân thượng phía trước và phía sau.

Phối cảnh 3d nội thất Nhà phố 3 tầng hiện đại – Lê Hồng Phong
Nội thất phòng khách


Nội thất phòng bếp



Nội thất phòng ngủ ba mẹ


Nội thất phòng ngủ con


Hình ảnh thực tế công trình hoàn thiện nhà phố 3 tầng đường Lê Hồng Phong

Phòng khách

Phòng bếp




Phòng ngủ


Bạn yêu thích mẫu nhà phố 3 tầng, bạn đang có nhu cầu thiết kế cho Ngôi nhà hiện đại mơ ước của riêng mình, bạn cần tìm một đơn vị thiết kế thi công trọn gói tại Quảng Ngãi để thiết kế và thi công cho ngôi nhà của mình. Hãy đến với Lyarchdesign chúng tôi tin chắc sẽ mang đến cho bạn một không gian sống theo phong cách riêng của mình.
Liên hệ tư vấn: 0983 861 024 (Mr. Hải)
Facebook: facebook.com/lyarchdesign







