Thông tin chung Nhà Vườn
+ Địa điểm: Thị Trấn La Hà
+ Loại hình: Nhà vườn
+ Số tầng: 1 tầng
+ Diện tích:
+ Đơn vị thiết kế và thi công : Công ty CP Kiến Trúc và Xây Dựng Lyarch
Phối cảnh 3d Nhà Vườn La Hà
Phối cảnh 3D của nhà vườn
Góc khác của V – VILLA
Mang nét đẹp giao hòa cùng thiên nhiên, gợi nhắc âm hưởng truyền thống qua hình khối kiến trúc nhẹ nhàng, V-VILLA thể hiện trọn vẹn một ngôi nhà dành cho trải nghiệm sống an yên của gia chủ.
V-VILLA hướng đến lối sống hòa mình với thiên nhiên, với thiết kế mở tập trung vào thoáng – sáng và sân vườn xanh mát.
Không gian được tối ưu hóa diện tích, đảm bảo các khu vực chức năng bên trong nhà luôn được rộng mở và tiếp xúc trực tiếp với thiên nhiên bên ngoài. Từng góc nhà cũng được xếp một cách hài hòa và đồng điệu. Cùng những vật liệu gỗ mộc mạc giúp tăng cảm giác gần gũi và ấm áp cho ngôi nhà.
Mời anh chị cùng ngắm nhìn hình ảnh của V-VILLA được mô phỏng 3D bởi LyarchDesign !
▐ Mỗi ngôi nhà, mỗi câu chuyện. Vì vậy, chúng tôi đặt sự quan tâm đặc biệt đến từng mong muốn của khách hàng, lắng nghe và thấu hiểu, để kiến tạo nên không gian sống hài lòng mỹ mãn. Liên hệ LyarchDesign để nhận tư vấn trực tiếp từ Kiến trúc sư!
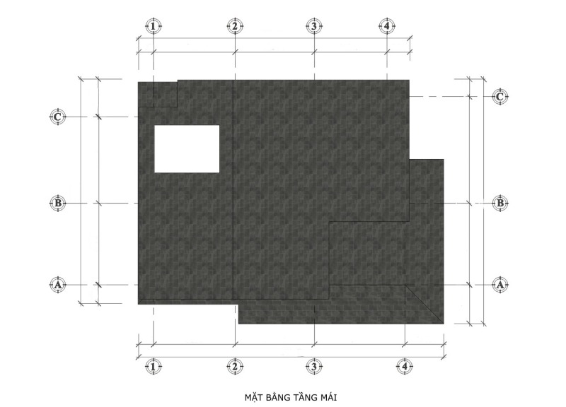
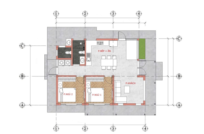
CHI TIẾT CÔNG NĂNG CỦA NHÀ VƯỜN









