Ngôi nhà mang phong cách hiện đại dường như đã chiếm trọn trái tim của người trẻ yêu sự tự do, phóng khoáng. Và nó như trở thành một xu hướng thiết kế được ưa chuộng hiện nay. Mang cảm hứng của những thiết kế mở thời đại mới, Biệt thự 2 tầng hiện đại tại KDC Ngọc Bảo Viên – nơi chúng tôi tự do “vẽ” nên bức tranh hoàn mỹ, tạo ra những sáng tạo vô hạn cho kiến trúc, duy trì tính độc đáo, riêng biệt cho công trình. Lyarchdesign mời bạn cùng khám phá ngôi nhà này nhé!
Thông tin chi tiết dự án:
+ Địa điểm xây dựng: KDC Ngọc Bảo Viên TP. Quảng Ngãi
+ Quy mô dự án: biệt thự 2 tầng hiện đại
+ Diện tích xây dựng: 8x16m
+ Đơn vị thiết kế và thi công trọn gói: Công ty CP kiến trúc và xây dựng Lyarch
Phối cảnh 3D biệt thự 2 tầng hiện đại tại KDC Ngọc Bảo Viên

Với lợi thế chiều rộng khá lớn 8m, KTS Lyarchdesign đã thiết kế mặt tiền cho biệt thự 2 tầng hiện đại tại KDC Ngọc Bảo Viên hết sức ấn tượng và đặc biệt. Các đường nét kiến trúc hiện đại cùng sự kết hợp các vật liệu cao cấp như gỗ, đá, kính… giúp mặt tiền sang trọng và đẳng cấp hơn. Bên cạnh đó, kiểu thiết kế mái bằng theo phong cách hiện đại cũng là điểm nhấn tôn lên vẻ đẹp cho mặt tiền.
Cổng hàng rào thiết kế “vừa kín, vừa hở”

Mặt tiền biệt thự 2 tầng hiện đại tại KDC Ngọc Bảo Viên mang vẻ đẹp hiện đại với những đường nét kiến trúc vuông vức. Phần cổng được thiết kế “vừa kín, vừa hở”, đảm bảo sự an toàn đồng thời “đủ” để phô diễn vẻ đẹp. Khiến ngôi nhà thêm hấp dẫn, thu hút ánh nhìn của bất kỳ ai.
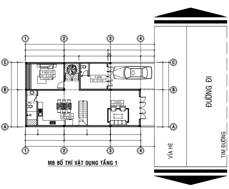
Mặt bằng công năng biệt thự 2 tầng hiện đại KDC Ngọc Bảo Viên
Bên trong ngôi nhà, các khu vực chức năng được bố trí một cách hợp lý,tiện nghi, thuận lợi cho sinh hoạt của gia đình. Mời bạn cùng tham khảo mặt bằng công năng chi tiết của L’s House bên dưới nhé!
+ Tầng 1: Garage, 01 Phòng xăm , 1 Phòng ngủ, Phòng khách, Bếp + P. Ăn, 01 Toilet.

+ Tầng 2: 02 Phòng ngủ, sân phơi, Phòng Thờ, 01 Toilet, Sân Thượng

Với phương châm mang lại sự hài hòa, thoáng mát và tiện nghi sử dụng, Biệt thự 2 tầng hiện đại KDC Ngọc Bảo Viên được KTS Lyarchdesign gửi gắm tình yêu vào từng chi tiết, mang đến hiệu ứng thẩm mỹ cao. Hãy tưởng tượng mỗi sáng bạn thức dậy tại ngôi nhà như thế này, ngắm nhìn không gian lung linh được các kiến trúc sư chúng tôi kiến tạo nên, ắt hẳn ngày mới sẽ luôn tràn đầy năng lượng.
Mong rằng đây sẽ là gợi ý tuyệt vời cho ngôi nhà của gia đình bạn trong tương lai nhé!
Bạn cần tư vấn thiết kế thi công nhà trọn gói tại Quảng Ngãi hãy liên hệ Lyarchdesign qua holine: 0983 861 024 (Mr. Hải). Tự hào là công ty thiết kế nhà đẹp và xây nhà trọn gói uy tín tại Quảng Ngãi. Lyarchdesign tự tin mang đến cho quý khách không gian sống đẹp đẳng cấp nhất.
>> Website: Nhà đẹp Quảng Ngãi






