Nhà là nơi mọi giấc mơ khởi nguồn, nơi ta luôn thấy ấm áp trong trái tim mình. Nhà cũng là nơi để gia chủ thể hiện và sống đúng với phong cách cá nhân. Biệt thự 2 tầng tại Sơn Hà do LYARCHDESIGN thiết kế cho gia chủ là tổ ấm hội tụ cả hai yếu tố trên. Kết hợp hài hòa giữa hiện đại và sang trọng, ngôi nhà mang đến không gian sống đẳng cấp, thoáng mát và đẹp mắt. Cùng khám phá vẻ đẹp của căn nhà này nhé!
Thông tin chi tiết dự án
+ Địa điểm xây dựng: Thị trấn Di Lăng – Sơn Hà
+ Quy mô dự án: Biệt thự 2 tầng
+ Diện tích: 10×20 m2
+ Đơn vị thiết kế và thi công trọn gói: CÔNG TY CP KIẾN TRÚC VÀ XÂY DỰNG LYARCH
+ Năm xây dựng: 2023
Biệt thự 2 tầng tại Sơn Hà mang nét đẹp hiện đại
Ngay từ cái nhìn đầu tiên, biệt thự 2 tầng tại Sơn Hà tỏa sáng với kiến trúc hiện đại và đường nét tinh tế. Với mặt tiền rộng rãi, các dãy cửa kính lớn được sắp xếp một cách hợp lý, mang đến ánh sáng tự nhiên cho không gian bên trong và tạo nên sự giao thoa hài hòa giữa không gian ngoại thất và nội thất. Kiến trúc sáng tạo này cũng tạo điểm nhấn độc đáo và tạo nên một biệt thự độc lập và nổi bật trong cảnh quan xung quanh.

Căn biệt thự 2 tầng tại Sơn Hà của gia chủ đang thăng hoa trong công việc với mong muốn được thiết kế một cách sang trọng, và đây là kết quả của đội ngũ kts LYARCHDESIGN
Mặt tiền được sử dụng vật liệu hiện đại như kính, gỗ nhựa cùng với màu xanh của cây làm điểm nhấn. Tường rào và cổng cũng được thiết kế một cách khác biệt với các thanh lam dọc đầy ấn tượng.
Công năng hợp lý, thuận tiện trong sử dụng hằng ngày
Mặt bằng bố trí vật dụng tầng 1 biệt thự 2 tầng tại Sơn Hà
+ Tầng 1: Phòng khách, Bếp, 02 phòng ngủ, Kho, Sân sau và 02 WC.

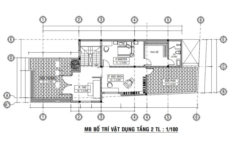
Mặt bằng bố trí vật dụng tầng 2 biệt thự 2 tầng tại Sơn Hà
+ Tầng 2: 01 Phòng ngủ Master, phòng thờ, Khu nghỉ ngơi đọc sách, sân phơi, phòng thay đồ & 01 WC.

Với công năng bố trí khoa học, hình khối kiến trúc độc đáo, kiên cố cùng mặt tiền hiện đại, đẹp mắt, mẫu Biệt thự 2 tầng tại Sơn Hà được đón nhận với sự hài lòng tuyệt đối của gia chủ mà không có sự chỉnh sửa phương án.
Với trình độ chuyên môn, năng lực và kinh nghiệm nhiều năm trong lĩnh vực thiết kế và xây nhà trong gói tại Quảng Ngãi, LYARCHDESIGN luôn sẵn sàng tư vấn và mang đến cho khách hàng những ngôi nhà chất lượng, thẩm mỹ nhất.
>> Facebook: www.facebook.com/lyarchdesign
>> Hotline: 0983 861 024 (Mr. Hải)






