Vẻ đẹp tinh tế của nhà phố 4 tầng mang phong cách hiện đại
LYARCH DESIGN luôn mong muốn tạo dựng những công trình vượt lên cả mong đợi về một tổ ấm an toàn, vững chắc cho gia đình. Đó còn phải là nơi thể hiện được phong cách sống, đẳng cấp và gu thẩm mỹ của gia chủ. Nhà phố 4 tầng phong cách hiện đại đường Tế Hanh là một công trình mang phong cách hiện đại tạo nên không gian sống thời thượng và sang trọng.
Thông tin chi tiết dự án
- Địa điểm xây dựng: Đường Tế Hanh – TP. Quảng Ngãi
- Quy mô dự án: Nhà phố 4 tầng
- Diện tích: 5x16m2
- Đơn vị thiết kế và thi công trọn gói: Công ty CP Kiến trúc và Xây Dựng Lyarch
- Năm xây dựng: 2023

Mỗi đường nét, mảng tường và khối vuông được sắp xếp một cách tỉ mỉ để tạo nên một tác phẩm nhà ở hoàn hảo. Trong kiến trúc hiện đại điều cần nhất chính là đường nét sắc sảo và tính mạnh mẽ bên trong từng vật liệu. Sự kết hợp hài hòa giữa chúng sẽ tạo nên ấn tượng sâu sắc cho người nhìn về sự bền vững và phóng khoáng theo tháng năm.
Phối cảnh 3d Nhà phố 4 tầng phong cách hiện đại đường Tế Hanh
Bước vào không gian bên trong ngay lập tức ta sẽ cảm nhận được sự êm ái và tĩnh lặng lan tỏa trong không gian. Với sự lựa chọn cẩn thận của màu sắc và vật liệu nhà phố 4 tầng tại đường Tế Hanh, TP Quảng Ngãi trở thành một nơi dừng chân đáng mơ ước của bao người.

Không gian sống bên trong ngôi nhà phố 4 tầng không chỉ mang đến sự nhẹ nhàng và thư thái mà còn là nơi thể hiện gu thẩm mỹ của chủ nhân. Từ màu sắc cho đến vật liệu và thiết kế chi tiết, tất cả được lựa chọn và thiết kế một cách tỉ mỉ để tạo nên một không gian sống đẳng cấp và đáng mơ ước. Dừng chân trước ngôi nhà phố 4 tầng để trải nghiệm sự nhẹ nhàng và thư thái với nội thất hiện đại sẽ là một trải nghiệm quý báu.
Mặt bằng công năng nhà phố 4 tầng Đường Tế Hanh – TP. Quảng Ngãi
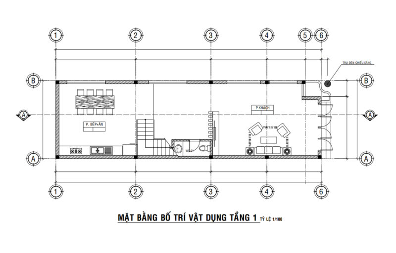
Mặt bằng công năng tầng 1
Công năng tầng 1 gồm : 1 phòng khách, Bếp + ăn, 1 WC

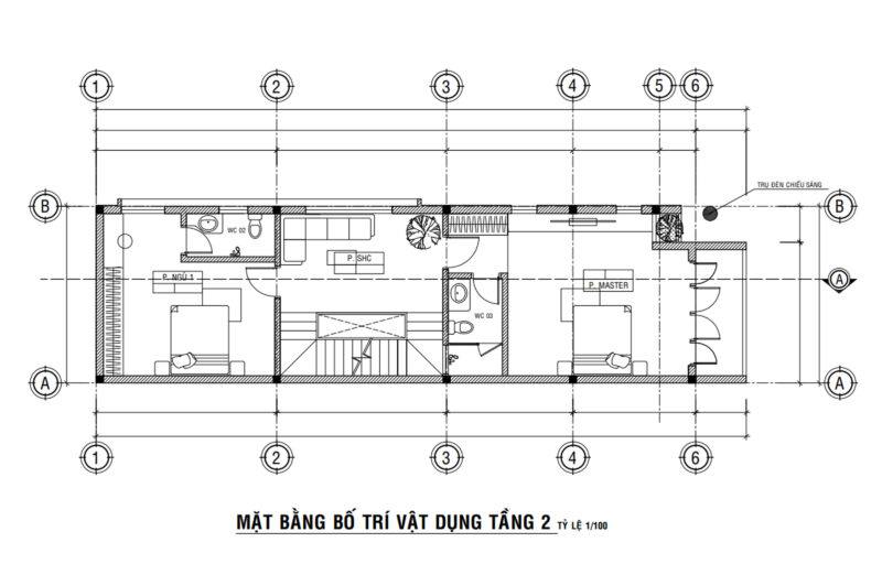
Mặt bằng công năng tầng 2
Tầng 2: 1 phòng ngủ, 1 phòng ngủ master, 1 Phòng SHC và WC

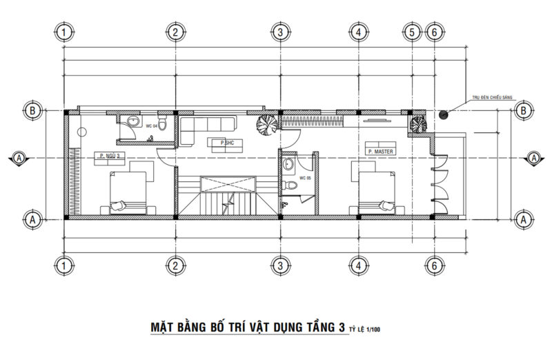
Mặt bằng công năng tầng 3
Tầng 3: 1 phòng ngủ, 1 phòng ngủ master, 1 Phòng SHC và WC

Mặt bằng công năng tầng 4
Tầng 4: 1 phòng tum, sân phơi và sân thượng

Mặt bằng công năng tầng mái

Bạn yêu thích mẫu nhà phố 4 tầng Đường Tế Hanh – TP. Quảng Ngãi, bạn đang có nhu cầu thiết kế cho Ngôi nhà hiện đại mơ ước của riêng mình, bạn cần tìm một đơn vị thiết kế thi công trọn gói tại Quảng Ngãi để thiết kế và thi công cho ngôi nhà của mình. Hãy đến với Lyarchdesign chúng tôi tin chắc sẽ mang đến cho bạn một không gian sống theo phong cách riêng của mình.
Liên hệ tư vấn: 0983 861 024 (Mr. Hải)
Website: thiết kế nhà đẹp Quảng Ngãi
Facebook: facebook.com/lyarchdesign






