Mang đậm hơi thở hiện đại, những ngôi nhà được thiết kế theo phong cách này dường như đã chiếm trọn trái tim của người yêu sự tự do, phóng khoáng. Và nó như trở thành một xu hướng thiết kế được ưa chuộng hiện nay. Mang cảm hứng của những thiết kế thời đại mới, nơi Lyarchdesign tự do “vẽ” nên bức tranh hoàn mỹ, tạo ra những sáng tạo vô hạn cho kiến trúc, duy trì tính độc đáo, riêng biệt cho công trình Nhà phố 2 tầng hiện đại KDC Phước Thạnh. LYARCHDESIGN mời bạn cùng khám phá ngôi nhà này nhé!

Thông tin chi tiết dự án:
+ Địa chỉ: KDC Phước Thạnh
+ Diện tích: 9×20 m2
+ Quy mô dự án: Nhà phố 2 tầng
+ Đơn vị thiết kế và thi công trọn gói: Công ty CP Kiến trúc và Xây dựng Lyarch
+ Năm xây dựng: 2023
Mặt tiền nhà phố 2 tầng hiện đại KDC Phước Thạnh thu hút mọi ánh nhìn
Với lợi thế chiều rộng khá lớn 9m, KTS đã thiết kế mặt tiền cho nhà phố 2 tầng KDC Phước Thạnh hết sức ấn tượng và đặc biệt. Các đường nét kiến trúc hiện đại cùng sự kết hợp các vật liệu cao cấp như gỗ, đá ong xám, kính… giúp mặt tiền sang trọng và đẳng cấp hơn bao giờ. Bên cạnh đó, kiểu khiết kế mái theo phong cách hiện đại cũng là điểm nhấn tôn lên vẻ đẹp cho mặt tiền.

Công năng nhà phố 2 tầng hiện đại KDC Phước Thạnh
Bên trong ngôi nhà, các khu vực chức năng được bố trí một cách hợp lý,tiện nghi, thuận lợi cho sinh hoạt của gia đình. Mời bạn cùng tham khảo mặt bằng công năng chi tiết của nhà phố 2 tầng hiện đại tại KDC Phước Thạnh bên dưới nhé!
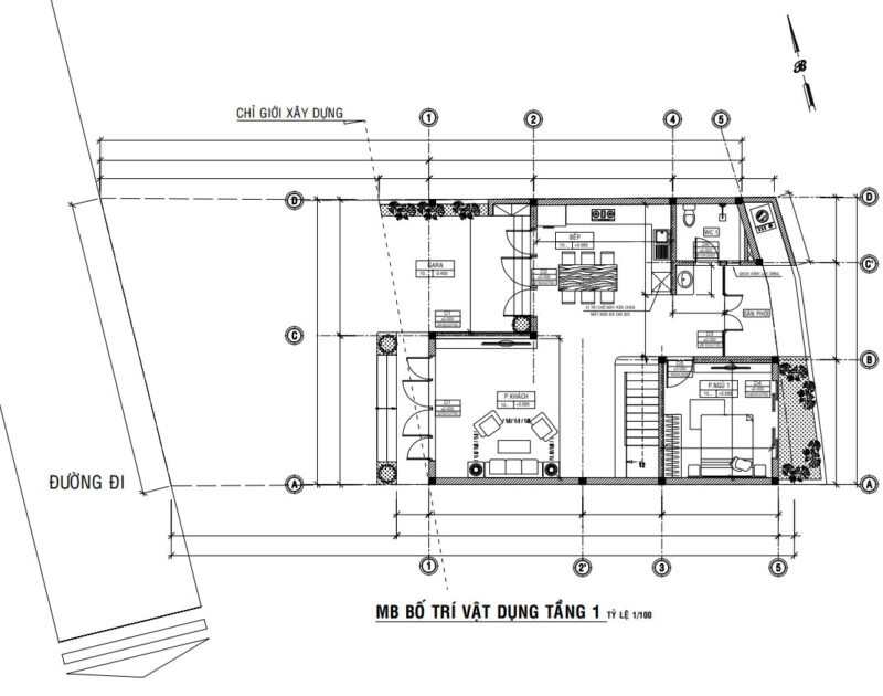
Mặt bằng bố trí vật dụng tầng 1
+ Tầng 1: Garage, 01 Phòng Ngủ, Phòng Khách, Bếp + P.Ăn, 01 Toilet, Sân phơi


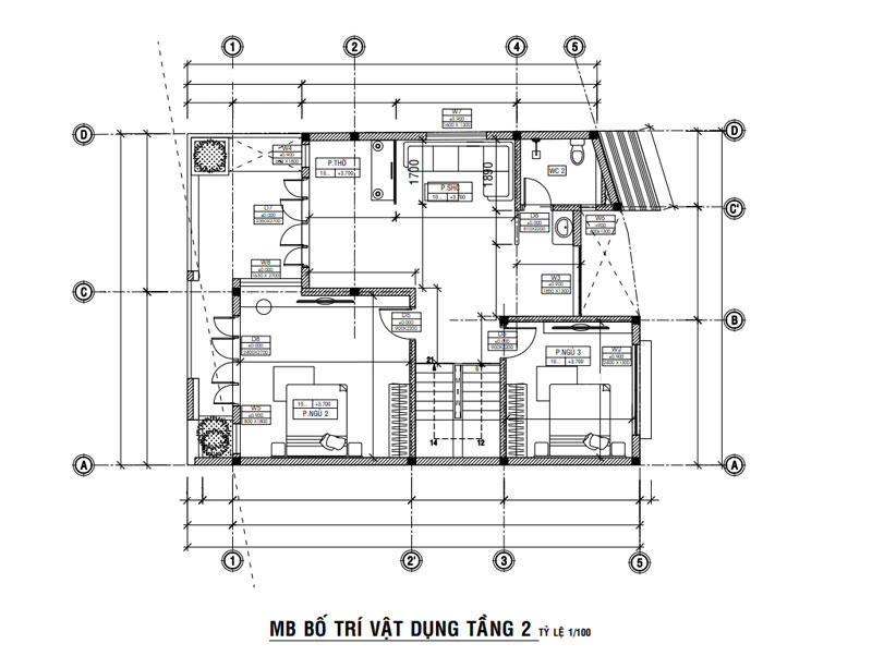
Mặt bằng bố trí vật dụng tầng 2
+ Tầng 2: 02 Phòng ngủ, Phòng SHC, Phòng Thờ, 01 Toilet, Sân Thượng


Có thể thấy, mẫu Nhà phố 2 tầng hiện đại KDC Phước Thạnh là mơ ước mà rất nhiều người muốn có được. Trước đây, để có được không gian sống hoàn hảo như vậy. Sẽ không hề đơn giản. Thế nhưng, bây giờ mọi chuyện sẽ dễ dàng hơn rất nhiều. Chỉ cần bạn liên hệ đến LYARCHDESIGN theo số hotline: 0983 861 024. Tự hào là đơn vị thiết kế xây nhà trọn gói tại Quảng Ngãi uy tín chất lượng, Lyarchdesign tôi có thể mang đến cho bạn một không gian sống lý tưởng như những gì mình mong muốn. Với đội ngũ KTS trình độ cao, kinh nghiệm nhiều năm và tận tâm với nghề. Chúng tôi tự tin có thể khiến bạn hài lòng với tổ ấm mà mình có được.






