Không xa hoa, không cầu kì kiểu cách, Chủ đầu tư tại đường Phạm Văn Đồng lựa chọn cho mình một cuộc sống nhẹ nhàng, bình yên trong mẫu biệt thự 3 tầng mái Thái. Dù không quá độc đáo nhưng mẫu biệt thự 3 tầng Phạm Văn Đồng này vẫn xứng đáng là một trong những mẫu nhà tiêu biểu tại Tp. Quảng Ngãi trong năm 2018 bởi vẻ đẹp bề thế, sang trọng, khiến người qua lại phải phải trầm trồ, thán phục bởi vẻ đẹp của nó.
Không để các bạn phải chờ đợi lâu nữa, dưới đây Lyarchdesign sẽ giới thiệu đến bạn phối cảnh mặt tiền và mặt bằng bố trí công năng của căn biệt thự 3 tầng đẹp đường Phạm Văn Đồng Tp. Quảng Ngãi để bạn có những đánh giá chính xác về căn nhà.
Thông tin chi tiết công trình biệt thự Phạm Văn Đồng
| Công trình | Biệt thự Phạm Văn Đồng |
| Địa điểm | Đường Phạm Văn Đồng – TP. Quảng Ngãi |
| Diện tích xây dựng | 124,64 m2 |
| Năm thi công | 2018 |
| Đơn vị thi công | Công ty CP kiến trúc và xây dựng Lyarchdegn |
Phối cảnh 3d công trình biệt thự 3 tầng đường Phạm Văn Đồng
Khi xây dựng phối cảnh cho biệt thự đều xây dựng cả phần cổng nhà. Lyarchdesign lựa chọn cho gia chủ loại cổng sắt có màu chủ đạo là màu đồng. Góp phần tạo nên hàng rào chắn vững chắc bảo vệ căn nhà kết hợp với cổng chúng tôi làm thêm phần mái che và tường rào bê tông đang sen với các ô vuông có họa tiết hoa văn được làm bằng sắt màu đồng đảm bảo chức năng che chắn, bảo vệ khu nhà.

Xem thêm: Biệt thự 2 tầng đẹp tại Đức Nhuận Mộ Đức
Mẫu biệt thự 3 tầng Phạm Văn Đồng đơn giản mang lại sự thanh thoát, sáng sủa, nhẹ nhàng, nhã nhặn nhờ việc lựa chọn tông màu chủ đạo là màu trắng.
Tuy nhiên nếu biệt thự 3 tầng chỉ có màu trắng thì sẽ trở lên nhàm chán, đơn điệu nên KTS Lyarchdesign đã linh hoạt tạo thêm điểm nhấn bằng cách lựa chọn lan can ban công màu đồng có nhiều đường nét hoa văn cùng với mái màu xanh lơ.

Ngoài ra trên ban công các tầng và phần đất thừa bên cạnh nhà được trồng thêm cây xanh để tô điểm cho căn biệt thự sinh động, hấp dẫn hơn, cho các thành viên trong nhà có cuộc sống trong lành, thoáng đãng, gần gũi với thiên nhiên.

Mặt bằng công năng công trình biệt thự Phạm Văn Đồng
Mẫu biệt thự 3 tầng 15,2×8,8m không chỉ đẹp về ngoại thất mà còn có cách bố trí công năng vô cùng khoa học. Ngoài những không gian chính cho ăn ở, ngủ nghỉ, nhà còn có thêm Gara để xe oto, có thể thấy được mức sống cao của gia đình. Cụ thể công năng như sau:
Mặt bằng công năng tầng 1
Tầng 1: Từ cổng bước vào là gara, từ cửa chính bước bào là phòng khách rộng sẽ được bố trí 1 bộ ghế sofa rời, 1 bàn trà và 1 kệ tivi. Nối liền với phòng khách là phòng bếp kết hợp phòng ăn rộng 19m2. Trong phòng bếp sẽ đặt loại tủ bếp âm tường hình chữ L để tiết kiệm diện tích. Một bộ bàn 6 ghế được đặt chính giữa gian bếp để gia đình cùng sinh hoạt chung. Phần diện tích còn lại được chia cho phòng WC.

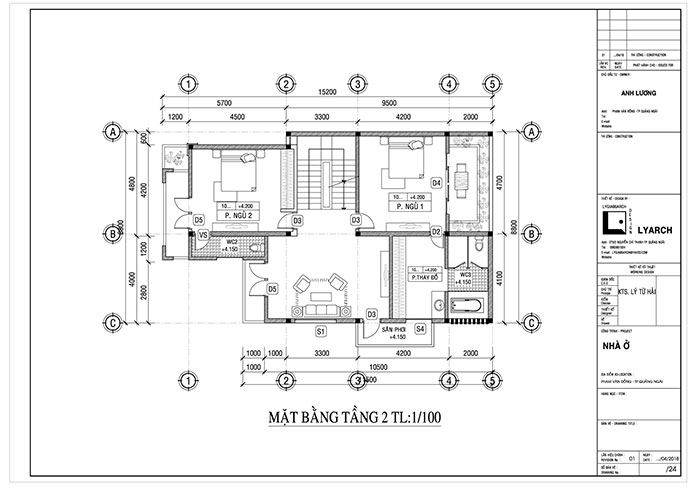
Mặt bằng công năng tầng 2
Chủ yếu sử dụng cho sinh hoạt cá nhân với 2 phòng ngủ trong đó có 1 phòng có WC trong , 1 phòng sinh hoạt chung và 1 phòng thay đồ + WC. Tùy thuộc vào độ tuổi mà Lyarchdesign có sự sắp xếp vị trí và hướng giường khác nhau hợp với phong thủy.

Mặt bằng công năng tầng 3
Tầng 3 chia công năng gồm 1 phòng ngủ, 1 phòng đọc sách, 1 phòng thờ và 1 WC và không gian còn lại dành cho sân phơi. Với phòng thờ đặt ở tầng trên cùng của nhà nhằm đảm bảo không gian thờ phụng.

Mẫu biệt thự 3 tầng Phạm Văn Đồng sang trọng về ngoại thất, với công năng sinh hoạt tiện nghi nên đã lấy được rất nhiều cảm tình của nhiều gia chủ. Nếu bạn cảm thấy ưng ý về mẫu nhà này và muốn tìm hiểu thêm về nội thất trong nhà của biệt thự Phạm Văn Đồng có thể liên lạc với Nhà đẹp Quảng Ngãi để nhận được hỗ trợ tốt nhất nhé.
LyarchDesign trực tiếp thiết kế và thi công Công trình biết thự Phạm Văn Đồng
LyarchDesign tự hào là đơn vị có kinh nghiệm lâu năm trong lĩnh vực xây dựng nhà ở Quảng Ngãi. Hơn nữa với đội ngũ nhân viên chuyên nghiệp có kinh nghiệm làm việc lâu năm trong lĩnh vực thiết kế, xây nhà trọn gói, thiết kế thi công nội thất tại Quảng Ngãi và được sự đánh giá cao từ phía khách hàng.
Không chỉ công trình biệt thự Phạm Văn Đồng mà còn nhiều công trình biệt thự, nhà phố, câu lạc bộ đã và đang được Lyarchdesign thi công tại Quảng Ngãi. Bạn có nhu cầu thiết kế nhà đẹp, xây nhà trọn gói tại Quảng Ngãi hay thiết kế thi công nội thất thì hãy liên hệ Lyarchdesign để được hỗ trợ tư vấn tốt nhất.
Thông tin liên hệ:
CÔNG TY CP KIẾN TRÚC VÀ XÂY DỰNG LYARCH
Địa chỉ: Tầng 3 căn PG2-08A Vincom Quảng Ngãi
Hotline/ Zalo: 0983861024 (Mr. Hải)
Website: https://lyarchdesign.com/






