Thật ấn tượng khi được sở hữu một không gian sống với những khoảng xanh thiên nhiên, vừa mang lại không gian đẹp vừa giúp chúng ta giải tỏa căng thẳng. Đó cũng chính là những giá trị hàng đầu mà LYARCHDESIGN hướng tới – Hiện đại, tiện nghi và thông thoáng.
Hôm nay, Lyarchdesign xin giới thiệu đến bạn đọc mẫu nhà ở 2 tầng sở hữu các yếu tố thiên nhiên ngập tràn được chúng tôi thiết kế cho một gia chủ tại khu đô thị An Phú Sinh. Mời mọi người cùng khám phá!
Thông tin chi tiết dự án:
- Địa điểm xây dựng: Khu đô thị An Phú Sinh
- Kích thước: 6x18m2
- Quy mô dự án: Nhà phố 2 tầng
- Thiết kế và thi công trọn gói: CÔNG TY CP KIẾN TRÚC VÀ XÂY DỰNG LYARCH
Phối cảnh 3D nhà ở 2 tầng khu đô thị An Phú Sinh
Giữa sự đông đúc và nhộn nhịp của thành phố, Nhà ở 2 tầng khu đô thị An Phú Sinh giống như một điểm nhấn bình yên. Gia chủ yêu thích phong cách hiện đại pha lẫn chút truyền thống, chút đặc trưng của kiến trúc Việt xưa.

Kiến trúc sư đã khéo léo sáng tạo hai tông màu đối lập là Xám – Vàng để tăng thêm điểm nhấn ấm cúng cho công trình. Với gam màu ngói xám cho phần mái và trắng cho các mảng tường, điểm xuyết là chút xanh thiên nhiên từ các hệ cây ở ban công. Ngoài ra, các kiến trúc sư của LYARCHDESIGN còn khéo léo kết hợp với những đường cong tinh tế cho mặt tiền.

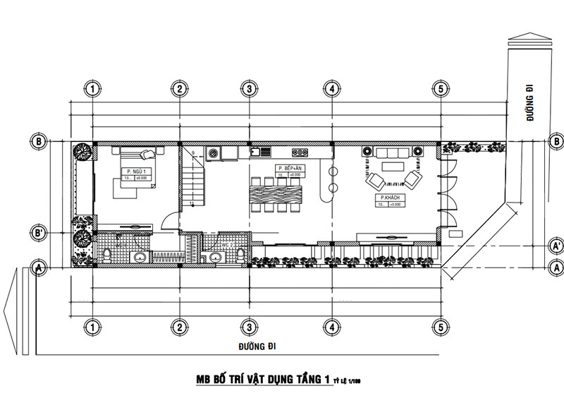
Mặt bằng công năng nhà ở 2 tầng tại khu đô thị An Phú Sinh
Tầng 1: Phòng khách, 1 Bếp + ăn, 1 phòng ngủ và 2 WC

Tầng 2: Phòng ngủ, thư giãn, 1 phòng thờ và 1 WC 
Nội thất hiện đại phù hợp với nhu cầu
Công trình nhà ở 2 tầng khu đô thị An Phú Sinh được các kiến trúc sư đầu tư về mảng ánh sáng. Để giúp gia chủ vừa tận hưởng không khí thiên nhiên, vừa giữ được sự riêng tư. Không gian nội thất như phòng khách, phòng ngủ được sắp đặt cửa sổ hay cửa kính lớn nhìn ra vườn, ban công. Giúp ngôi nhà tận dụng ánh sáng tối đa, tạo cảm giác mát mẻ, thư thái và gia chủ có thể chiêm ngưỡng cảnh quan bên ngoài.
Nội thất phòng khách

Việc bố trí ánh sáng hợp lý không chỉ tạo nên phần hồn cho một không gian nội thất, mà còn góp phần phản ánh phong cách sống của gia chủ


Nội thất phòng bếp + ăn
Được góp nhặt, sắp xếp tài tình nhằm mang đến không gian thoải mái, mộc mạc và tự nhiên nhất có thể.

Nội thất phòng ngủ


Nếu yêu thích và mong muốn được hòa mình vào không gian đầy nghệ thuật này thì nhà ở 2 tầng khu đô thị An Phú Sinh là mẫu thiết kế lý tưởng để bạn tham khảo. Ngoài ra, nếu bạn đang băn khoăn chưa biết đơn vị nào có thể thiết kế ngôi nhà mơ ước của mình theo phong cách hiện đại. Hoặc bạn đang tìm kiếm đơn vị thiết kế thi công trọn gói tại Quảng Ngãi để đưa ý tưởng của bạn thành hiện thực thì hãy liên hệ với LYARCHDESIGN ngay hôm nay để được tư vấn cụ thể.
> Hotline tư vấn: 0983 861 024 (Mr. Hải)
>> Facebook: Facebook.com/lyarchdesign






