Nhà phố 1 tầng hiện đại Tịnh Ấn Tây được thiết kế theo phong cách hiện đại, tối giản nhưng không kém phần tinh tế. Mặt tiền sử dụng gam màu trắng – be thanh lịch, kết hợp hệ cửa kính khung nhôm xám giúp ngôi nhà luôn tràn ngập ánh sáng tự nhiên.

Tổng quan công trình nhà phố 1 tầng hiện đại Tịnh Ấn Tây
- Vị trí: Tịnh Ấn Tây, TP. Quảng Ngãi
- Quy mô: Nhà phố
- Thiết kế & thi công: Lyarchdesign
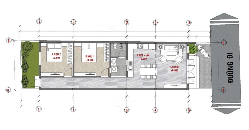
Thiết kế nhà phố 1 tầng hiện đại Tịnh Ấn Tây

Hệ thống cổng sắt sơn tĩnh điện chắc chắn, vừa đảm bảo an toàn vừa tăng tính thẩm mỹ, tạo điểm nhấn nổi bật cho kiến trúc tổng thể.
Công Năng Sử Dụng Tiện Nghi, Bố Trí Khoa Học
Bản vẽ công năng của mẫu nhà phố được sắp xếp hợp lý, phù hợp với gia đình trẻ 2 – 4 thành viên:
Phòng Khách
Không gian rộng rãi ngay cửa chính, là nơi sinh hoạt chung và tiếp khách, mang lại sự ấm cúng.
Khu Bếp + Ăn
Được bố trí liền kề phòng khách, tạo sự kết nối tiện lợi trong sinh hoạt hàng ngày.

Phòng Ngủ
Đặt liên tiếp nhau, đảm bảo sự riêng tư và yên tĩnh cho các thành viên trong gia đình.

Nhà Vệ Sinh Chung
Thiết kế tối ưu diện tích nhưng vẫn đầy đủ tiện nghi, thuận tiện cho việc sử dụng.
Sân Sau & Tiểu Cảnh Xanh
Tạo không gian thoáng mát, giúp lưu thông không khí và mang lại cảm giác thư giãn.
Ưu điểm nổi bật của mẫu nhà phố 1 tầng hiện đại Tịnh Ấn Tây
- Thiết kế tối giản → tiết kiệm chi phí xây dựng.
- Công năng khoa học → phù hợp diện tích đất hẹp ngang.
- Không gian xanh → gần gũi với thiên nhiên.
- Tính thẩm mỹ cao → bắt kịp xu hướng kiến trúc nhà phố 2025.
Nhà phố 1 tầng hiện đại Tịnh Ấn Tây – Giải Pháp Tối Ưu Cho Gia Đình Trẻ
Mẫu nhà phố 1 tầng hiện đại Tịnh Ấn Tây không chỉ đáp ứng nhu cầu sinh hoạt tiện nghi mà còn thể hiện phong cách sống hiện đại, trẻ trung. Đây là giải pháp lý tưởng cho gia đình trẻ muốn sở hữu một ngôi nhà đẹp, chi phí hợp lý nhưng vẫn đảm bảo đầy đủ công năng.
Với phương châm “Thiết kế tối ưu – Thi công chuẩn chỉnh – Bàn giao đúng cam kết”, Nhà thầu xây dựng uy tín tại Quảng Ngãi – Lyarchdesign không chỉ đồng hành cùng khách hàng trong việc lên ý tưởng thiết kế, mà còn trực tiếp triển khai thi công từng chi tiết, đảm bảo chất lượng – thẩm mỹ – tiến độ công trình.
Lựa chọn Lyarchdesign, bạn sẽ nhận được:
- Đội ngũ kiến trúc sư sáng tạo, dày dặn kinh nghiệm.
- Giải pháp thiết kế và thi công đồng bộ, không phát sinh chi phí ngoài hợp đồng.
- Chất lượng vật liệu thi công cao cấp, kiểm duyệt nghiêm ngặt.
- Chính sách bảo hành – bảo trì rõ ràng, minh bạch.
Liên hệ tư vấn thiết kế & thi công nhà phố hiện đại
Nếu bạn đang tìm kiếm một đơn vị thiết kế và thi công biệt thự hiện đại uy tín tại Quảng Ngãi, hãy liên hệ ngay với Lyarchdesign để được tư vấn tận tâm và báo giá chi tiết:
📞 Hotline: 0983 861 024
📍 Văn phòng: 164 Phạm Văn Đồng, TP. Quảng Ngãi
🌐 Website: www.lyarchdesign.com
Facebook: https://www.facebook.com/lyarchdesign
Lyarchdesign – Kiến tạo không gian sống hiện đại, sang trọng và khác biệt cho từng khách hàng!






