Nhà phố 3 tầng hiện đại và tiện nghi mặt tiền 4,5m đang là xu hướng được nhiều gia đình trẻ yêu thích tại các đô thị phát triển. Với thiết kế tinh tế, tối ưu công năng trên diện tích đất không quá lớn, mẫu nhà này mang lại giải pháp lý tưởng cho cuộc sống hiện đại. Tại Quảng Ngãi, công trình nhà phố 3 tầng hiện đại và tiện nghi mặt tiền 4,5m do Công ty CP Kiến Trúc và Xây Dựng Lyarch thiết kế và thi công trên đường Nguyễn Thụy là minh chứng tiêu biểu cho sự kết hợp giữa tính thẩm mỹ, công năng và tiện ích sống vượt trội.

Tổng quan về dự án nhà phố 3 tầng tại Quảng Ngãi
- Địa điểm xây dựng: Đường Nguyễn Thụy – TP. Quảng Ngãi
- Diện tích xây dựng: 4,5m x 25m
- Quy mô công trình: Nhà phố 3 tầng
- Thiết kế & Thi công trọn gói: Công ty CP Kiến Trúc và Xây Dựng Lyarch
Căn nhà phố hiện đại này nằm trên trục đường Nguyễn Thụy – một vị trí đắc địa, thuận tiện di chuyển và có tiềm năng phát triển cao tại TP. Quảng Ngãi. Với mặt tiền rộng 4,5m, dài 25m, ngôi nhà được bố trí khoa học nhằm khai thác tối đa diện tích sử dụng.
Thiết kế mặt tiền ấn tượng, hiện đại
Phối cảnh mặt tiền tối giản nhưng thu hút

Mặt tiền căn nhà phố 3 tầng hiện đại và tiện nghi mặt tiền 4,5m được thiết kế theo phong cách hiện đại, tối giản nhưng tinh tế. Tông màu chủ đạo là trắng sứ kết hợp với các chi tiết điểm nhấn màu đen, xám và vật liệu giả gỗ, tạo nên tổng thể thanh lịch, sang trọng.
Khu vực ban công và tầng trệt sử dụng hệ lam và kính cường lực cao cấp, vừa giúp đón sáng tự nhiên, vừa tạo cảm giác thông thoáng cho không gian nội thất. Bên cạnh đó, kiến trúc sư còn khéo léo đưa vào các đường nét mạnh mẽ và dứt khoát, thể hiện sự hiện đại và chắc chắn của công trình.

Bố trí công năng thông minh, tối ưu diện tích
Không chỉ gây ấn tượng bởi mặt tiền, căn nhà phố 3 tầng hiện đại và tiện nghi mặt tiền 4,5m còn chinh phục gia chủ bởi cách bố trí không gian sống vô cùng hợp lý. Công trình được thiết kế với đầy đủ các khu vực chức năng đáp ứng cho gia đình nhiều thế hệ sinh sống.
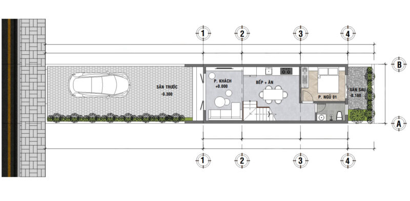
Mặt bằng tầng 1 – Khu vực sinh hoạt chung

Tầng trệt gồm các không gian:
- Sân trước để xe
- Phòng khách rộng rãi liên thông với khu vực bếp ăn
- Một phòng vệ sinh chung
- Sân sau lấy sáng và thông gió tự nhiên
Nhờ chiều dài 25m, không gian sinh hoạt chung được thiết kế rộng và thoáng, tạo cảm giác dễ chịu, phù hợp cho các buổi sum họp gia đình hoặc tiếp đón khách.
Mặt bằng tầng 2 – Khu vực nghỉ ngơi

Tầng 2 được bố trí:
- 2 phòng ngủ lớn
- 2 phòng vệ sinh khép kín
- Ban công thông thoáng hướng ra mặt tiền
Từng phòng ngủ đều được thiết kế đảm bảo riêng tư, có cửa sổ hoặc ban công đón ánh sáng và gió trời, tạo không gian nghỉ ngơi lý tưởng.
Mặt bằng tầng 3 – Không gian mở và linh hoạt

Tầng 3 bao gồm:
- 1 phòng ngủ hoặc phòng làm việc tùy nhu cầu
- Khu vực phòng thờ yên tĩnh
- Sân phơi và sân thượng
Đặc biệt, sân thượng có thể được tận dụng làm khu vườn nhỏ hoặc khu vực thư giãn ngoài trời, lý tưởng để hít thở không khí trong lành sau những giờ làm việc căng thẳng.
Ưu điểm nổi bật của nhà phố 3 tầng mặt tiền 4,5m
Thiết kế linh hoạt theo nhu cầu gia chủ
Với diện tích 4,5x25m, mẫu nhà này có thể dễ dàng điều chỉnh công năng tùy thuộc vào số lượng thành viên trong gia đình và nhu cầu sử dụng, từ 3 đến 5 phòng ngủ hoặc có thêm không gian làm việc, giải trí.
Tiết kiệm chi phí nhờ thi công trọn gói
Toàn bộ công trình được thiết kế và thi công bởi Công ty CP Kiến Trúc và Xây Dựng Lyarch theo hình thức “trọn gói”, giúp gia chủ tiết kiệm đáng kể thời gian và chi phí. Từng hạng mục đều được kiểm soát chặt chẽ về chất lượng, đảm bảo tiến độ thi công nhanh chóng và hiệu quả.
Giải pháp thông gió, lấy sáng tối ưu
Một trong những điểm cộng lớn của công trình là khả năng thông gió và lấy sáng rất tốt nhờ vào:
Sân trước – sau đều thông thoáng
Cửa sổ lớn và ban công ở tất cả các tầng
Giếng trời giữa nhà hỗ trợ phân bố ánh sáng đều khắp không gian
Nhờ vậy, căn nhà luôn có cảm giác mát mẻ, tiết kiệm năng lượng và đảm bảo sức khỏe cho các thành viên.
Không gian nội thất đẹp tối Ưu – Thiết kế hiện đại từ LyarchDesign
Nếu mặt tiền là “bộ mặt” của ngôi nhà – nơi thể hiện cá tính với bên ngoài, thì không gian bên trong chính là nơi lưu giữ cảm xúc, đánh dấu từng khoảnh khắc gắn bó của gia chủ với tổ ấm thân thương. Và trong dự án dưới đây, LyarchDesign đã một lần nữa khẳng định được thế mạnh của mình trong lĩnh vực thiết kế và thi công nội thất trọn gói, mang đến một không gian hiện đại – tinh tế – ấm cúng và vô cùng tối ưu công năng.
Nội thất phòng khách


Nội thất phòng bếp


Phòng làm việc


Phòng ngủ


Đơn vị thiết kế và thi công uy tín tại Quảng Ngãi
Công ty CP Kiến Trúc và Xây Dựng Lyarch là một trong những đơn vị tiên phong trong lĩnh vực thiết kế và thi công nhà phố, biệt thự tại Quảng Ngãi. Với đội ngũ kiến trúc sư sáng tạo, kỹ sư chuyên môn cao và quy trình thi công chuyên nghiệp, Lyarch đã thực hiện hàng trăm công trình chất lượng và nhận được sự hài lòng từ khách hàng.
Công trình nhà phố 3 tầng hiện đại và tiện nghi mặt tiền 4,5m tại đường Nguyễn Thụy là một minh chứng sống động cho khả năng sáng tạo và năng lực thực thi của đội ngũ Lyarch.
Liên hệ tư vấn thiết kế – thi công nhà phố tại Quảng Ngãi
Bạn đang tìm kiếm một mẫu nhà phố 3 tầng hiện đại và tiện nghi mặt tiền 4,5m phù hợp với gia đình mình? Bạn muốn có một tổ ấm tiện nghi, thẩm mỹ và phù hợp tài chính? Hãy để Lyarch đồng hành cùng bạn từ ý tưởng đến hiện thực.
📞 Hotline: 0983 861 024
🌐 Website: lyarchdesign.com
📍 Địa chỉ: 164 Phạm Văn Đồng – P. Nghĩa Chánh – TP. Quảng Ngãi
Từ khóa chính “Nhà phố 3 tầng hiện đại và tiện nghi mặt tiền 4,5m” đã được sử dụng xuyên suốt bài viết để đảm bảo chuẩn SEO và thu hút người đọc đúng nhu cầu tìm kiếm.
Nếu bạn muốn mình thêm hình ảnh phối cảnh hoặc mặt bằng tầng vào bài, mình có thể giúp bạn chỉnh sửa và tối ưu thêm nhé.






