Svilla Biệt thự hiện đại – 2024 được thiết kế thông thoáng, mát mẻ với cây cối bao quanh ngập tràn không gian xanh đem lại không khí trong lành gần gũi với thiên nhiên.
Thông tin chung mẫu biệt thự Svilla
+ Địa điểm: Thành phố Quảng Ngãi
+ Loại hình: Biệt thự
+ Số tầng:
+ Kích thước: 7,5m x 25m
+ Đơn vị thiết kế: Công ty CP Kiến Trúc và Xây Dựng Lyarch
1.Phối cảnh 3D biệt thự Svilla
Mặt tiền là sự kết hợp một cách mới mẻ, sáng tạo nhưng vô cùng hài hoà và tự nhiên tạo nên điểm nhấn đặc sắc và nổi bật cho căn nhà. Với tông màu trắng giúp căn nhà này toát lên được nét đẹp hiện đại, trẻ trung.
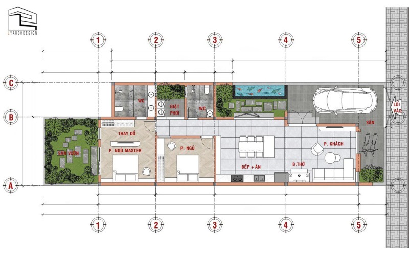
2. Mặt bằng công năng 3D biệt thự Svilla
Mặt bằng bố trí
Nếu toàn bộ hệ cửa đều sử dụng cửa kính sẽ làm cho mặt tiền căn nhà không có điểm nhấn dẫn đến nhạt nhoà và đơn điệu. Vì vậy KTS Lyarch Design đã kết hợp giữa gỗ Conwood với đá rối giúp cho căn nhà trở nên mạnh mẽ và tươi mới hơn.
Phần sân trước của ngôi nhà được lát gạch xám nhạt nhẹ nhàng và được thiết kế diện tích rộng rãi để gia chủ có thể thoải mái để xe ô tô cũng như làm không gian vui chơi đùa nghịch cho các con.
Tuy cổng tường rào được xem là công trình phụ, nhưng lại đóng vai trò quan trọng bảo vệ an toàn cho các thành viên trong gia đình cũng như ngăn tách ngôi nhà cùng đường xá tập nấp bên ngoài để đảm bảo sự riêng tư. Ngôi nhà hiện đại 1 tầng được bao bọc xung quanh bởi hệ thống tường rào bằng bê tông kiên cố và chắc chắn. Phần cổng được thiết kế kiểu dáng hiện đại, loại hai cánh rộng giúp các phương tiện của gia đình ra vào thuận tiện và dễ dàng hơn rất nhiều
Phân chia công năng bên trong ngôi nhà 1 tầng mái nhật cũng được kiến trúc sư nghiên cứu thiết kế và bố trí một cách hợp lý, khoa học và tối ưu để mang đến không gian thoáng mát, rộng rãi vừa đủ để tạo ra sự thoải mái cho các thành viên trong gia đình. Công năng sử dụng của căn nhà anh Vụ bao gồm phòng khách, phòng thờ, 1 phòng ngủ master, 2 phòng ngủ thường, phòng bếp ăn và 2 nhà vệ sinh. .
Chi tiết công năng:
- Hy vọng mẫu thiết kế Biệt thự hiện đại – Svilla này sẽ mang đến cho các bạn những ý tưởng mới lạ trong việc xây dựng nhà ở của gia đình. Quý khách hàng có nhu cầu thiết kế nhà đẹp hay xây nhà trọn gói Quảng Ngãi nhà phố, biệt thự, căn hộ…. vui lòng liên hệ qua 0983 861 024 (Mr. Hải) hoặc đến địa chỉ 164 Phạm văn đồng, P. Nghĩa chánh, TP. Quảng Ngãi để được tư vấn hỗ trợ miễn phí nhé. Mọi thắc mắc hay nhu cầu sẽ được giải đáp, nhanh chóng thuận tiện.
- Facebook: facebook.com/lyarchdesign









