Trong những năm gần đây, xu hướng thiết kế biệt thự 2 tầng hiện đại ngày càng được ưa chuộng nhờ sự kết hợp hài hòa giữa công năng, thẩm mỹ và không gian sống tiện nghi. Một trong những mẫu biệt thự nổi bật được LYARCHDESIGN triển khai thiết kế và thi công trọn gói tại Khu đô thị Ngọc Bảo Viên, Quảng Ngãi chính là căn Biệt thự 2 tầng hiện đại diện tích 8x16m, mang đậm phong cách hiện đại và tinh tế.

Tổng quan công trình Biệt thự 2 tầng hiện đại diện tích 8x16m
- Địa điểm: Khu đô thị Ngọc Bảo Viên, TP. Quảng Ngãi
- Diện tích đất: 8x16m
- Quy mô: Biệt thự 2 tầng
- Đơn vị thiết kế & thi công: Công ty CP Kiến Trúc và Xây Dựng Lyarch
- Phong cách: Hiện đại, tối giản, gần gũi thiên nhiên
Biệt thự tọa lạc tại vị trí đẹp của khu đô thị, với mặt tiền rộng rãi, thoáng đãng và tiếp giáp đường chính, giúp công trình nổi bật giữa không gian xung quanh.
Phối cảnh mặt tiền – hiện đại, sang trọng và tinh tế
Ngay từ cái nhìn đầu tiên, mặt tiền căn biệt thự đã gây ấn tượng mạnh nhờ bố cục hình khối vuông vức, đường nét dứt khoát và sự phối hợp chất liệu đầy tinh tế. Tone màu trắng chủ đạo kết hợp ốp đá xám, lam gỗ trần và những mảng xanh khéo léo tạo nên sự hài hòa giữa yếu tố thẩm mỹ và thiên nhiên.
Ban công tầng 2 được thiết kế vừa đủ rộng, có mái che bằng lam sắt và trần gỗ giúp chắn nắng mà vẫn thoáng gió. Hệ cửa kính lớn mang đến cảm giác thông thoáng, tận dụng tối đa ánh sáng tự nhiên, tạo nên một không gian sống hiện đại và gần gũi.
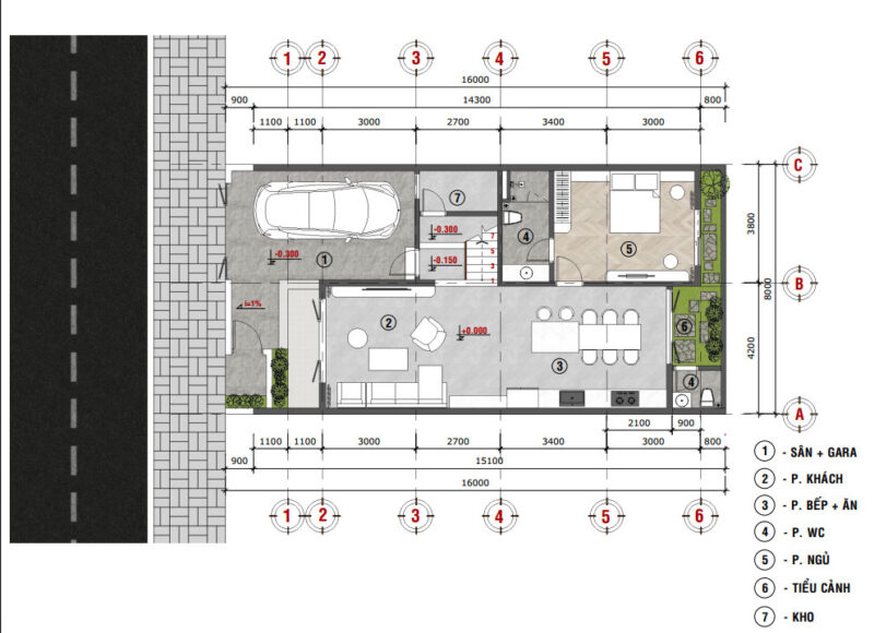
Mặt bằng công năng tối ưu – Đáp ứng mọi nhu cầu sinh hoạt
Tầng 1: Không gian sinh hoạt chung và phòng ngủ master

Sân trước kết hợp gara ô tô: rộng rãi, có mái che, lối đi lát gạch chống trượt, dễ vệ sinh.
Phòng khách: rộng thoáng, liên thông với khu bếp + ăn, tạo sự liền mạch và tiện nghi trong sinh hoạt.
Bếp và phòng ăn: thiết kế hiện đại, sử dụng tủ bếp chữ L, bàn ăn 6 chỗ. Bố trí cửa sổ và tiểu cảnh cạnh bàn ăn giúp không gian luôn tràn đầy năng lượng.
Phòng ngủ master: nằm cuối nhà, đảm bảo sự riêng tư, yên tĩnh, tích hợp tủ âm tường gọn gàng.
WC tầng 1: đầy đủ tiện nghi, đặt ở vị trí hợp lý phục vụ chung cho tầng.
Điểm cộng lớn ở tầng 1 là tiểu cảnh nhỏ xen kẽ giữa các khu vực, giúp căn nhà thêm phần sinh động và gần gũi với thiên nhiên.
Tầng 2: Không gian nghỉ ngơi, thư giãn và thờ cúng

Phòng SHC (sinh hoạt chung): trung tâm tầng 2, nơi sum họp, thư giãn cho cả gia đình.
Phòng ngủ 02 & 03: diện tích vừa đủ, bố trí hợp lý với tủ đồ và cửa sổ thoáng đãng.
Phòng thờ: đặt ở vị trí trang nghiêm, thông thoáng, hướng tốt hợp phong thủy.
Sân phơi: tiện dụng, bố trí kín đáo phía sau, thuận tiện phơi đồ, giặt giũ.
Ban công: rộng, giúp đón gió, ánh sáng, đồng thời là nơi thư giãn lý tưởng mỗi buổi sáng hoặc chiều.
Ưu điểm nổi bật của mẫu biệt thự hiện đại 8x16m
Công năng tối ưu: Dù diện tích 128m² không quá lớn, nhưng cách phân chia mặt bằng khoa học đã giúp ngôi nhà vừa đầy đủ công năng, vừa đảm bảo sự thông thoáng.
Phong cách hiện đại, tối giản: Mọi chi tiết đều hướng đến sự tinh gọn, tiện nghi, phù hợp với lối sống năng động ngày nay.
Thiết kế mở, gần gũi thiên nhiên: Sử dụng cửa kính lớn, tiểu cảnh xen kẽ tạo cảm giác thoáng đãng, mát mẻ.
Thi công chuẩn chỉnh, vật liệu chất lượng: Tất cả vật liệu được lựa chọn kỹ lưỡng, từ sơn ngoại thất, gạch lát, thiết bị vệ sinh đến hệ cửa đều mang tính bền bỉ và thẩm mỹ cao.
Dành cho khách hàng đang tìm đơn vị thiết kế & xây nhà trọn gói tại Quảng Ngãi
LYARCHDESIGN tự hào là đơn vị chuyên thiết kế và thi công nhà ở, biệt thự, nhà phố hiện đại tại Quảng Ngãi với nhiều năm kinh nghiệm trong lĩnh vực thi công nhà trọn gói tại Quảng Ngãi. Chúng tôi không chỉ mang đến những bản vẽ thiết kế tối ưu mà còn đồng hành cùng khách hàng từ khâu xin phép xây dựng, dự toán chi phí đến thi công hoàn thiện.
Khi lựa chọn LYARCHDESIGN, bạn sẽ nhận được:
- Tư vấn thiết kế miễn phí theo nhu cầu, diện tích, ngân sách.
- Đội ngũ kiến trúc sư trẻ, sáng tạo, luôn cập nhật xu hướng mới.
- Cam kết chất lượng thi công, tiến độ đúng hạn.
- Bảo hành lâu dài, hỗ trợ sau xây dựng.
Liên hệ ngay để được tư vấn thiết kế – thi công biệt thự tại Quảng Ngãi
Nếu bạn đang có nhu cầu xây dựng nhà ở, biệt thự hiện đại tại Quảng Ngãi, đừng ngần ngại liên hệ với chúng tôi để được tư vấn hoàn toàn miễn phí!
📞 Hotline: 0983 861 024
🌐 Website: lyarchdesign.com
📍 Địa chỉ: 164 Phạm Văn Đồng – P. Nghĩa Chánh – TP.Quảng Ngãi
LYARCHDESIGN – Kiến tạo không gian sống đẳng cấp, hiện đại và đầy cảm hứng!






