Nhà phố 2 tầng 3 phòng ngủ là mẫu thiết kế đang được nhiều gia đình Việt Nam lựa chọn, đặc biệt là các hộ có từ 2 – 3 thế hệ cùng sinh sống. Với thiết kế tối ưu không gian, công năng tiện nghi và chi phí xây dựng hợp lý, mẫu nhà này trở thành xu hướng phổ biến tại các khu đô thị, đặc biệt là tại Quảng Ngãi.
Trong bài viết này, Lyarchdesign – Công ty thiết kế và thi công nhà trọn gói tại Quảng Ngãi, xin chia sẻ đến bạn một mẫu thiết kế Nhà phố 2 tầng 3 phòng ngủ đẹp, hiện đại trên diện tích đất 5x18m, kèm bản vẽ mặt bằng công năng chi tiết. Mời bạn cùng tham khảo để có thêm ý tưởng cho tổ ấm tương lai của mình!

Vì sao nhà phố 2 tầng 3 phòng ngủ là lựa chọn lý tưởng?
Mẫu nhà phố 2 tầng 3 phòng ngủ được đánh giá cao nhờ những ưu điểm nổi bật sau:
Phù hợp với nhiều mô hình gia đình
Với 3 phòng ngủ, mẫu nhà này đáp ứng tốt nhu cầu sinh hoạt của gia đình từ 2 đến 6 thành viên. Đây là lựa chọn hoàn hảo cho:
- Gia đình trẻ có từ 1–2 con nhỏ
- Gia đình 3 thế hệ cùng sinh sống
- Các cặp vợ chồng muốn đầu tư lâu dài, ổn định
- Không gian được phân bổ hợp lý, vừa đảm bảo tính riêng tư cho từng thành viên, vừa thuận tiện cho sinh hoạt chung.
Tối ưu hóa diện tích đất tại đô thị
Tại những khu vực thành thị như Quảng Ngãi, diện tích đất ở thường khá hạn chế. Với thiết kế dạng nhà ống 2 tầng trên diện tích 5x18m, mẫu nhà này khai thác tối đa diện tích sử dụng theo chiều dọc.
Tuy có diện tích bề ngang hạn chế nhưng vẫn đảm bảo đầy đủ các không gian sinh hoạt cần thiết như: phòng khách, bếp, sân trước – sau, phòng ngủ, nhà vệ sinh, phòng sinh hoạt chung,…
Chi phí xây dựng hợp lý
Một trong những điểm cộng lớn của mẫu nhà này là chi phí xây dựng tương đối vừa phải, nhờ kết cấu đơn giản, không quá phức tạp. Tuy nhiên, vẫn mang đến không gian sống hiện đại, sang trọng, tiện nghi nếu được thiết kế bài bản.
Thông tin chi tiết dự án
- Địa điểm xây dựng: Đường Nguyễn Thụy, Quảng Ngãi
- Diện tích đất: 5x18m
- Diện tích xây dựng: Khoảng 135m²
- Loại hình: Nhà phố 2 tầng hiện đại
- Thiết kế và thi công: Công ty CP Kiến Trúc và Xây Dựng Lyarch
Thiết kế mặt tiền hiện đại, tối giản nhưng ấn tượng
Mặt tiền ngôi nhà được thiết kế theo phong cách hiện đại, tối giản nhưng vẫn nổi bật nhờ cách bố trí hình khối tinh tế và vật liệu hoàn thiện chất lượng. Tone màu chủ đạo là trắng – xám trung tính, kết hợp mảng bê tông sơn giả đá và lam gỗ trang trí, tạo cảm giác nhẹ nhàng nhưng không kém phần sang trọng.
Điểm nhấn của mặt tiền là những mảng xanh bố trí xen kẽ ở ban công và phần sân trước, mang đến sự gần gũi với thiên nhiên, giúp điều hòa không khí và tạo cảm giác thư giãn cho cả gia đình.
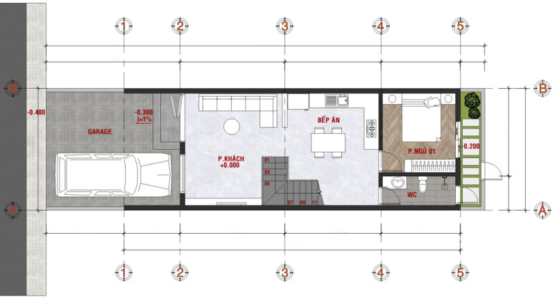
Mặt bằng công năng – Tối ưu không gian sống
Mặt bằng công năng tầng 1:

- Sân trước: Kết hợp chỗ để ô tô
- Phòng khách: Không gian mở, liền mạch với bếp và khu vực ăn
- Bếp + Ăn: Thiết kế hiện đại, đầy đủ tiện nghi
- 01 Phòng ngủ: Phù hợp cho ông bà hoặc khách đến chơi
- 01 Nhà vệ sinh chung: Bố trí gọn gàng, tiện lợi
Sân sau: Thoáng mát, có thể tận dụng làm sân phơi hoặc vườn nhỏ
Mặt bằng công năng tầng 2:

- 02 Phòng ngủ: Trong đó có 1 phòng ngủ Master rộng rãi
- Phòng SHC: Phòng sinh hoạt chung, có thể kết hợp làm phòng đọc sách hoặc góc làm việc
- 01 WC chung: Đáp ứng nhu cầu sinh hoạt tầng trên
Với cách bố trí này, ngôi nhà đáp ứng tốt nhu cầu sinh hoạt của cả gia đình. Các không gian đều thông thoáng, đón được ánh sáng tự nhiên và gió trời, tạo cảm giác dễ chịu, thoải mái khi sử dụng.
Lyarchdesign – Đơn vị thiết kế và thi công nhà trọn gói uy tín tại Quảng Ngãi
Với nhiều năm kinh nghiệm trong lĩnh vực kiến trúc và xây dựng, Lyarchdesign tự hào là đơn vị chuyên thiết kế và thi công nhà phố, biệt thự, nhà vườn tại Quảng Ngãi, được nhiều khách hàng tin tưởng lựa chọn.
Chúng tôi mang đến giải pháp thiết kế tối ưu – thi công chuẩn chỉnh – chi phí hợp lý, đồng hành cùng bạn từ ý tưởng đến khi bàn giao công trình hoàn thiện.
Bạn đang tìm dịch vụ xây nhà trọn gói tại Quảng Ngãi và muốn sở hữu một ngôi nhà đẹp như thế?
Hãy liên hệ ngay với Lyarchdesign để được tư vấn miễn phí, khảo sát tận nơi và nhận báo giá chi tiết cho tổ ấm mơ ước của bạn!
📞 Hotline: 0983 861 024
🏠 Facebook : Lyarchdesign – Thiết kế thi công nhà trọn gói tại Quảng Ngãi






