Biệt thự 3 tầng sang trọng mang phong cách hiện đại tại KĐT Ngọc Bảo Viên là sự lựa chọn hoàn hảo cho những gia chủ yêu thích không gian sống đẳng cấp, tiện nghi. Với thiết kế hiện đại, biệt thự không chỉ chú trọng đến tính thẩm mỹ mà còn đảm bảo công năng sử dụng tối ưu. Đường nét kiến trúc tinh tế, mặt tiền độc đáo là sự kết hợp hài hòa giữa vật liệu cao cấp, ánh sáng tự nhiên và không gian xanh, tạo nên một tổng thể sang trọng nhưng vẫn gần gũi và ấm cúng.

Ngôi biệt thự 3 tầng này mang đến một trải nghiệm sống đẳng cấp với không gian mở, tối ưu ánh sáng và thông gió tự nhiên. Các mảng tường kính lớn giúp kết nối giữa không gian trong nhà và cảnh quan bên ngoài, đem lại cảm giác rộng rãi và thoáng đãng. Cùng với đó, hệ thống ban công, sân thượng và tiểu cảnh xanh được bố trí hợp lý, giúp gia chủ có những phút giây thư giãn thoải mái ngay tại chính ngôi nhà của mình.
Thông tin dự án biệt thự 3 tầng sang trọng
- Vị trí: KĐT Ngọc Bảo Viên
- Diện tích đất: 8x16m
- Số tầng: 3 tầng
- Phong cách: Hiện đại, sang trọng
- Đơn vị thiết thiết kế và thi công trọn gói: Công ty CP Kiến Trúc và Xây Dựng Lyarch
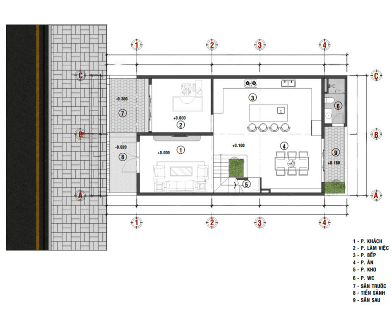
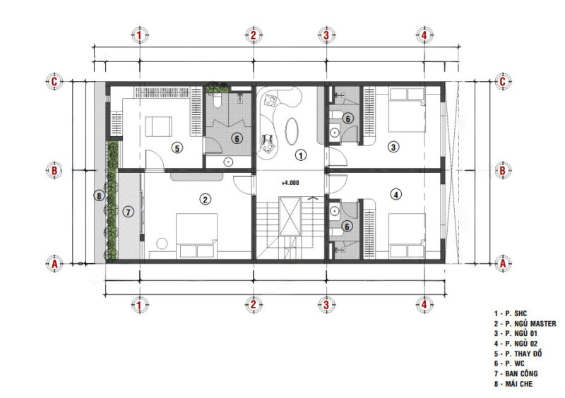
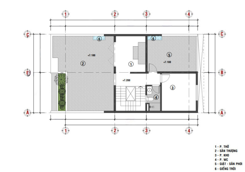
Mặt bằng công năng biệt thự 3 tầng sang trọng tại KDT Ngọc Bảo Viên
Tầng 1: Phòng khách, bếp ăn, phòng làm việc, WC.

Với Không gian mở giữa phòng khách và bếp ăn tăng tính kết nối, gần gũi.
Tầng 2: Phòng Master, 2 phòng ngủ, phòng sinh hoạt chung, WC

Khu vực nghỉ ngơi với các phòng ngủ rộng rãi, cửa sổ lớn hướng ngoài tầm nhìn thoáng đãng.
Tầng 3: Phòng thờ, sân thượng, khu giặt phơi, WC

Sân thượng và khu vườn mini là không gian xanh tuyệt vời.
Biệt thự 3 tầng tại KĐT Ngọc Bảo Viên được Lyarchdesign này được thiết kế theo phong cách hiện đại, tối ưu hóa không gian với đường nét kiểu dáng tinh gọn, sử dụng vật liệu cao cấp như kính cường lực, gỗ tự nhiên, và đá hoa cương.
Kiến trúc mặt tiền kết hợp hài hòa giữa các khối hình học và yếu tố tự nhiên, mang đến sự gần gũi và thân thiện với môi trường. Ban công và sân thượng rộng giúp gia chủ thư giãn và hít thở không khí trong lành.
Phối cảnh 3D nội thất Biệt thự 3 tầng sang trọng tại KĐT Ngọc Bảo Viên
Thiết kế nội thất Phòng khách



Thiết kế nội thất phòng bếp



Thiết kế nội thất phòng ngủ
Nội thất phòng làm việc



Thiết kế nội thất phòng ngủ Master





Phòng ngủ con trai



Nội thất Phòng ngủ 1


Một số hình ảnh thực tế công trình Biệt thự 3 tầng tại KĐT Ngọc Bảo Viên










Thiết kế xây nhà trọn gói tại Quảng Ngãi – Lyarchdesign luôn là lựa chọn tuyệt vời
LYARCHDESIGN tự hào là đơn vị thiết kế và thi công biệt thự trọn gói hàng đầu tại Quảng Ngãi, cam kết:
- Thiết kế độc quyền theo yêu cầu
- Thi công chất lượng, bàn giao đúng tiến độ
- Giá cạnh tranh, minh bạch
- Hậu mãi tốt, bảo hành dài hạn
Hotline: 09838 61 024
Fanpage: Facebook.com/lyarchdesign
Hãy liên hệ ngay với LYARCHDESIGN để sở hữu biệt thự 3 tầng sang trọng và hiện đại nhất tại KĐT Ngọc Bảo Viên!






