Trong xu hướng phát triển đô thị hiện nay, những mẫu nhà phố 2 tầng hiện đại đang dần trở thành lựa chọn ưu tiên của nhiều gia đình trẻ tại các khu dân cư mới. Với thiết kế tối ưu diện tích, phối hợp hài hòa giữa công năng và thẩm mỹ, công trình Nhà phố 2 tầng hiện đại, thông thoáng và tiện nghi KDC 577 do Lyarchdesign thiết kế và thi công là một minh chứng rõ nét cho phong cách sống hiện đại, thoải mái và tiện nghi.

Ngôi nhà được xây dựng trên khu đất có mặt tiền 5m, chiều sâu khoảng 20m, tọa lạc tại khu dân cư 577 – một vị trí có hệ thống hạ tầng đồng bộ và không gian sống xanh lý tưởng.
Điểm nổi bật của công trình chính là mặt tiền mang đậm phong cách kiến trúc hiện đại, với hình khối vuông vức, sắc nét, kết hợp cùng đường cong mềm mại tại phần ban công tầng 2. Cách xử lý mảng miếng thông minh tạo nên một diện mạo thu hút và khác biệt.
Phối cảnh mặt tiền – đơn giản nhưng đầy ấn tượng

Mặt tiền ngôi nhà sử dụng tông màu trắng chủ đạo kết hợp cùng vật liệu giả gỗ và đá ốp đen ở tầng trệt, mang lại cảm giác sang trọng nhưng không quá phô trương. Vòm cong tại ban công tầng 2 không chỉ tạo điểm nhấn mềm mại, cân bằng với khối hình cứng cáp mà còn giúp mở rộng tầm nhìn và tăng khả năng đón gió, đón sáng.
Cửa cổng kết hợp khung sắt và gỗ nhựa tạo vẻ hiện đại, đồng thời đảm bảo an toàn và sự kín đáo cho không gian bên trong.
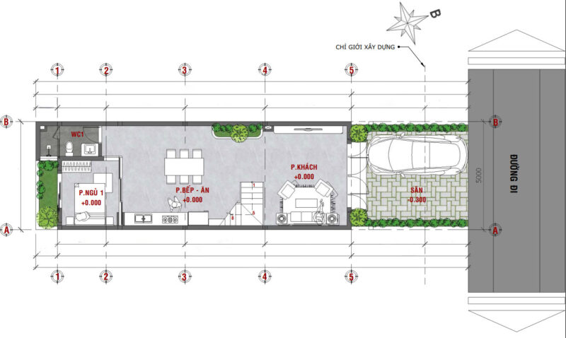
Mặt bằng tầng 1 – tối ưu hóa không gian sinh hoạt chung

Tầng trệt được bố trí hợp lý với các khu vực chức năng chính: phòng khách, bếp – ăn, phòng ngủ, WC và khoảng sân trước rộng rãi để xe ô tô.
Thiết kế mở giữa phòng khách và bếp tạo nên sự kết nối thông suốt, giúp không gian như rộng hơn thực tế. Phòng ngủ tầng 1 được đặt phía sau – kín đáo và yên tĩnh, rất phù hợp với gia đình có người lớn tuổi.
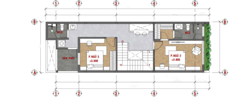
Mặt bằng tầng 2 – không gian riêng tư tiện nghi

Tầng 2 được bố trí với 2 phòng ngủ, 2 nhà vệ sinh, khu vực sinh hoạt chung và sân phơi.
Phòng ngủ 2 nằm ở phía trước có ban công đón gió, tạo không gian thư giãn lý tưởng. Phòng ngủ 3 phía sau gần khu sân phơi và WC riêng biệt, tiện lợi cho việc sử dụng cá nhân. Khu vực sinh hoạt chung ở giữa tạo nên không gian gắn kết cho các thành viên trong gia đình.
Ưu điểm nổi bật của mẫu nhà phố 2 tầng hiện đại
Thiết kế tối giản, tinh tế: Kết hợp các mảng khối rõ ràng, đường nét dứt khoát và vật liệu hiện đại.
Thông thoáng tự nhiên: Mỗi không gian đều được tính toán kỹ lưỡng để đón nắng, đón gió hiệu quả.
Công năng đầy đủ: 3 phòng ngủ, 3 WC, không gian sinh hoạt chung, sân phơi, sân đậu xe ô tô – đáp ứng tốt nhu cầu cho gia đình từ 4–6 người.
Thẩm mỹ bền vững: Không chạy theo xu hướng ngắn hạn, kiểu dáng nhà mang tính thời gian, phù hợp với nhiều lứa tuổi.
Lyarchdesign – Đơn vị thiết kế và thi công trọn gói uy tín
Công trình nhà phố 2 tầng tại KDC 577 là một sản phẩm của Lyarchdesign – đơn vị chuyên thiết kế và thi công nhà ở trọn gói với phương châm: “Tối ưu công năng – Nâng tầm thẩm mỹ – Đúng tiến độ – Đúng chi phí”.
Khách hàng khi lựa chọn Lyarchdesign sẽ nhận được:
✅ Thiết kế kiến trúc & nội thất 3D miễn phí
✅ Miễn phí hồ sơ xin phép xây dựng
✅ Bảo hành kết cấu & hoàn thiện rõ ràng
✅ Thi công chuyên nghiệp – minh bạch vật tư
Liên hệ tư vấn – hiện thực hóa tổ ấm mơ ước
Bạn đang tìm kiếm một mẫu nhà phố 2 tầng hiện đại phù hợp với quỹ đất và ngân sách của mình? Đừng ngần ngại liên hệ với đội ngũ Lyarchdesign để được tư vấn và lên ý tưởng chi tiết cho ngôi nhà tương lai của bạn.
📞 Hotline: 0983 861 024
🌐 Website: https://lyarchdesign.com/
📍 Facebook: Lyarchdesign
📍 Văn phòng thiết kế & thi công: 164 Phạm Văn Đồng – TP. Quảng Ngãi
Mẫu nhà phố 2 tầng hiện đại tại KDC 577 không chỉ là một nơi để ở, mà còn là không gian sống lý tưởng – nơi bạn có thể tận hưởng sự thoải mái, tiện nghi và hài hòa với thiên nhiên.
Lyarchdesign tự hào đồng hành cùng hàng trăm gia đình Việt trong hành trình kiến tạo tổ ấm. Chúng tôi không chỉ xây nhà – chúng tôi xây hạnh phúc.






