Trong bối cảnh đô thị ngày càng phát triển, nhu cầu về một không gian sống hiện đại, tiện nghi và đầy đủ công năng trở nên quan trọng hơn bao giờ hết. Tại khu dân cư Bầu Cả – một trong những khu vực quy hoạch đồng bộ và đáng sống tại TP. Quảng Ngãi, LyarchDesign vừa thực hiện Nhà phố 3 tầng đẹp hiện đại, đầy đủ công năng tại KDC Bàu Cả mang đậm hơi thở kiến trúc hiện đại, thiết kế chỉn chu và tối ưu hóa không gian cho gia đình trẻ. Hãy cùng khám phá chi tiết công trình này để hiểu vì sao đây là lựa chọn lý tưởng cho ngôi nhà mơ ước của bạn.

Thông tin dự án: Nhà phố 3 tầng KDC Bàu Cả
+ Địa chỉ: KDC Bầu Cả
+ Kích thước:
+ Quy mô dự án: Nhà phố 3 tầng
+ Đơn vị thi công: Công ty CP kiến trúc và xây dựng Lyarch
Thiết kế mặt tiền hiện đại – tinh tế và cuốn hút
Mặt tiền ngôi nhà là yếu tố đầu tiên thu hút ánh nhìn, và ở mẫu nhà phố 3 tầng tại KDC Bầu Cả, LyarchDesign đã mang đến một bố cục mạnh mẽ, phóng khoáng, nổi bật với các hình khối vuông vắn và mảng miếng tương phản. Tông màu chủ đạo là trắng và xám xi măng kết hợp cùng các đường viền ánh kim tinh tế, giúp ngôi nhà vừa sang trọng vừa hiện đại.
Đặc biệt, hệ ban công kính kết hợp lam che nắng thép sơn tĩnh điện tạo điểm nhấn kiến trúc rõ nét, đồng thời tăng hiệu quả sử dụng ánh sáng tự nhiên, chống nóng và đảm bảo sự riêng tư cho gia chủ. Không gian xanh cũng được lồng ghép thông minh với các bồn cây ở tầng 2 và tầng 3, giúp điều hòa không khí và làm mềm mại tổng thể công trình.

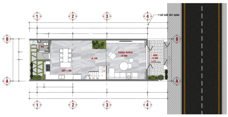
Mặt bằng công năng nhà phố 3 tầng KDC Bàu Cả
Mặt bằng tầng 1 – Mở đầu tiện nghi cho cuộc sống
Khi bước vào tầng trệt của ngôi nhà, bạn sẽ cảm nhận được sự rộng rãi và thoáng đãng nhờ vào cách bố trí không gian hợp lý. Tầng 1 bao gồm:
Sân trước rộng 2.6m, vừa đủ để làm khu vực để xe và tạo khoảng đệm thoáng đãng trước khi vào nhà.
Phòng khách rộng rãi, nằm ngay sau sân trước, được thiết kế với tông màu sáng, kết hợp cửa kính lớn mở ra tiểu cảnh nhỏ, giúp đón ánh sáng tự nhiên và tạo cảm giác gần gũi với thiên nhiên.
Khu vực bếp và phòng ăn được nâng cao hơn 100mm so với phòng khách, tạo sự phân tách nhẹ nhàng giữa các khu vực chức năng. Hệ bếp chữ L hiện đại, đảo bếp tiện lợi cho việc nấu nướng và thưởng thức bữa ăn gia đình.
Nhà vệ sinh tầng trệt được bố trí gọn gàng phía cuối nhà, tiện lợi cho khách và gia đình sử dụng.
Kho nhỏ dưới gầm cầu thang giúp tối ưu hóa không gian lưu trữ.
Một điểm cộng lớn là khu vực sân sau kết hợp lối đi bên hông nhà, không chỉ giúp lưu thông không khí mà còn là nơi lý tưởng để trồng cây, đặt máy giặt hoặc làm vườn nhỏ.

Mặt bằng tầng 2 – Không gian nghỉ ngơi riêng tư, đầy đủ công năng nghi cho cuộc sống
Tầng 2 của ngôi nhà được bố trí với mục tiêu tạo ra một không gian nghỉ ngơi riêng tư, yên tĩnh và thoải mái nhất cho các thành viên trong gia đình.
Phòng ngủ 01 nằm phía sau nhà, có cửa sổ lớn thông thoáng nhìn ra sân sau.
Phòng SHC (sinh hoạt chung) nằm ở trung tâm tầng, là nơi lý tưởng để các thành viên trong gia đình quây quần sau một ngày dài. Không gian này có thể tận dụng làm phòng đọc sách, giải trí, hoặc thậm chí là phòng học.
Phòng ngủ Master nằm ở phía trước nhà – diện tích rộng rãi, đi kèm với không gian phòng thay đồ riêng biệt và ban công nhìn ra mặt tiền.
Nhà vệ sinh tầng 2 được đặt giữa hai phòng ngủ, thuận tiện cho việc sử dụng mà vẫn đảm bảo riêng tư.
Với bố trí thông minh và tính toán kỹ lưỡng, tầng 2 mang đến sự tiện nghi tối đa mà vẫn duy trì được không gian mở, ánh sáng và gió tự nhiên luôn lưu thông dễ dàng.

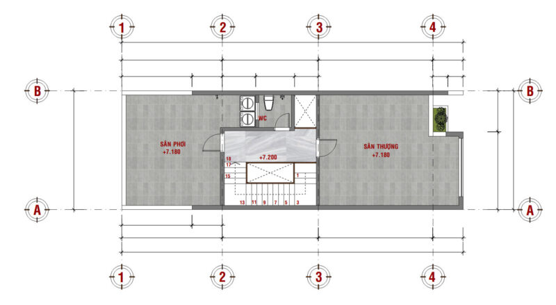
Mặt bằng công năng tầng 3
Sân giặt phơi, nơi đặt máy giặt, phơi đồ và có thể tận dụng làm vườn rau mini hoặc góc thư giãn ngoài trời.
Sân thượng rộng rãi phía trước, thích hợp tổ chức tiệc BBQ, trồng cây xanh hoặc làm khu thư giãn buổi chiều.

LyarchDesign – Đơn vị thiết kế và thi công trọn gói uy tín tại Quảng Ngãi
Với nhiều năm kinh nghiệm trong lĩnh vực thiết kế và thi công nhà ở dân dụng, LyarchDesign tự hào mang đến giải pháp kiến trúc chuẩn thẩm mỹ – đúng công năng – tối ưu chi phí cho khách hàng tại Quảng Ngãi và các tỉnh lân cận.
Quy trình làm việc của chúng tôi minh bạch, chuyên nghiệp:
- Khảo sát thực tế và tư vấn miễn phí.
- Thiết kế 3D mặt tiền và công năng chi tiết.
- Dự toán chi phí rõ ràng, không phát sinh.
- Thi công trọn gói với cam kết tiến độ và chất lượng.
- Bảo hành dài hạn – hỗ trợ khách hàng trọn đời sản phẩm.
Nếu bạn đang tìm kiếm một mẫu nhà phố 3 tầng đẹp hiện đại, đầy đủ công năng tại khu vực Quảng Ngãi, đặc biệt là trong các khu dân cư phát triển như KDC Bầu Cả, thì công trình do LyarchDesign thực hiện chính là gợi ý hoàn hảo. Với mặt tiền cuốn hút, không gian sống tiện nghi, bố trí thông minh và phong cách kiến trúc bền vững theo thời gian – đây chắc chắn sẽ là tổ ấm lý tưởng cho gia đình bạn.
📞 Liên hệ ngay LyarchDesign để được tư vấn miễn phí và nhận bản thiết kế 3D phù hợp với nhu cầu của bạn.
- Hotline: 0983 861 024
Địa chỉ: 164 Phạm Văn Đồng, TP. Quảng Ngãi
Website: https://lyarchdesign.com/






